Maison neuve à
Maubec (84660) Référence : DL2432277_3

Prix du projet : Maison avec Terrain

prix 296 000 €

  • 6 pièces
  • 4 chambres
  • Surface maison 93 m2

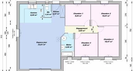
Maison de 6 pièces (93 m²) à vendre à Maubec
PROCHE D'AVIGNON - MAISON 6 PIÈCES NEUVE
À 35 km de la mer Méditerranée et à deux pas d'Avignon, Maisons France Confort Le Pontet vous propose cette maison de 6 pièces de plain-pied de 93 m² à Maubec (84660). Elle dispose de quatre chambres, d'une cuisine et d'une salle de bains.
Le terrain de la maison s'étend sur 510 m².
Cette maison est neuve.
Il y a l'École Primaire Arthur Rimbaud à moins de 10 minutes à pied. Niveau transports en commun, on trouve la gare Cavaillon à moins de 10 minutes en voiture. On trouve un accès à l'autoroute A7 à 10 km. Il y a un tennis, deux boulangeries, un commerce, une supérette et une boucherie-charcuterie dans les environs.
Elle est proposée à l'achat pour 296 000 €.
Contactez notre agence (Driss LAMTALSI : 04-90-32-93-25) pour obtenir de plus amples renseignements sur la maison. Maisons France Confort Le Pontet est là pour vous accompagner à toutes les étapes de l'achat.Mr Lamtalsi au 0626232703

Mentions légales

Terrain proposé par un partenaire foncier selon disponibilités et autorisation de publicité au prix de 157 000 €. Hors droit d'enregistrement et frais de notaire. Terrain + Maison proposés au prix de 296 000 € (Hors branchements et raccordements, papiers peints, peintures, revêtement de sol dans les chambres. Tarif modifiable sans préavis). Etiquette énergie : A. Différents modèles disponibles pour ce terrain. Assurances et garanties du constructeur (RC professionnelle, décennale, dommage ouvrage, garantie de remboursement de l'acompte, livraison à prix et délai convenu) : https://www.maisons-france-confort.fr/mentions-legales/. HEXAOM Services est enregistré auprès de l'ORIAS en tant que Courtier en financement, Niveau 1, sous le numéro 14001345.

Contactez l'agence de Le Pontet

04 90 03 10 91

    * Champs obligatoires

    Vos informations sont traitées par HEXAOM et transmises à un conseiller commercial qui vous contactera afin de répondre à votre demande. Les plans et images présentés sur notre site sont la propriété d’HEXAOM et ne peuvent pas être reproduits sans son accord. Pour retrouver notre politique de protection des données personnelles et exercer vos droits conformément à la « loi informatique et liberté » cliquez-ici.