Maison neuve à 
  Mauvezin
 (32120)  Référence :
 CE2268548_3 
Prix du projet : Maison avec Terrain
prix 329 874 €
- 6 pièces
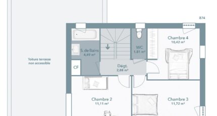
- 4 chambres
- Surface maison 110 m2
Mauvezin : maison F6 (110 m²) à vendre avec l'agence Maisons France Confort de Tournefeuille au 05.61.16.47.76
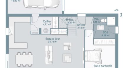
IDÉALEMENT SITUÉE - MAISON 6 PIÈCES NEUVE
Découvrez cette maison de 6 pièces de 110 m² et de 2 450 m² de terrain à vendre idéalement située dans Mauvezin (32120).
Cette maison comporte 2 niveaux. Son intérieur est composé de quatre chambres, d'une cuisine et de deux salles de bains. Cette maison est neuve.
La maison se trouve dans un quartier recherché. Il y a l'École Maternelle Publique, l'École Élémentaire Publique et le Collège du Fézensaguet à moins de 10 minutes à pied. La nationale N124 est accessible à 12 km. On trouve un bassin de natation, des commerces, deux boulangeries, un supermarché, une épicerie et un bureau de poste à proximité de la maison. Ne manquez pas le marché Place de la Libération chaque lundi matin.
Elle est à vendre pour la somme de 329 874 €.
N'hésitez pas à prendre contact avec l'agence Maisons France Confort de Tournefeuille au 05.61.16.47.76 pour toute question sur le bien ou sur les modalités de vente. Maisons France Confort Tournefeuille vous accompagne dans tous vos projets immobiliers et à toutes les étapes de l'achat.
Annonce proposée par un Agent Commercial Partenaire.
Mentions légales
Terrain proposé par un partenaire foncier selon disponibilités et autorisation de publicité au prix de 63 000 €. Hors droit d'enregistrement et frais de notaire. Maison proposée, avec un contrat de construction de maison individuelle, dans le cadre de la loi du 19/12/1990, au prix de 266 874 € (Hors branchements et raccordements, papiers peints, peintures, revêtement de sol dans les chambres, qui sont chiffrés dans les travaux qui restent à charge du client. Tarif modifiable sans préavis). Étiquette énergie : A. Différents modèles disponibles pour ce terrain. Assurances et garanties du constructeur comprises (RC professionnelle, décennale, dommage ouvrage).Agence Maisons France Confort de Tournefeuille (31170)
- Téléphone :
- 05 61 16 47 77
- Adressse :
-  114 chemin de Larramet
 31170 Tournefeuille, France
 
  
  
  
  
  
  
  
  
  
  
 