Maison neuve à
Mazé (49630) Référence : CP2424367_3

Prix du projet : Maison avec Terrain

prix 265 000 €

  • 6 pièces
  • 4 chambres
  • Surface maison 106 m2

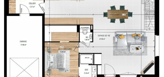
Mazé : maison T6 (106 m²) à vendre
CENTRE-VILLE - MAISON 6 PIÈCES NEUVE
En vente : située à quelques kilomètres d'Angers, Maisons Bernard Jambert Angers vous propose cette maison de 6 pièces de 106 m² dans le centre-ville de Mazé (49630).
Cette maison compte 2 niveaux. Son intérieur propose quatre chambres, une cuisine et deux salles de bains. La maison est neuve.
Le terrain du bien s'étend sur 356 m².
Il y a l'École Primaire Privée Sainte Marie et l'École Maternelle Publique Gaston Chaissac à moins de 10 minutes à pied. Niveau transports en commun, on trouve deux gares (Saint-Mathurin-sur-Loire et La Ménitré) à moins de 10 minutes en voiture. L'autoroute A85 est accessible à 6 km. Il y a un tennis, deux commerces, deux boulangeries, une boucherie-charcuterie, un bureau de poste et une supérette à quelques minutes.
Elle est proposée à l'achat pour 265 000 €.
Prenez contact avec Carole PORCHER (tél : 06-88-98-52-77) pour plus de renseignements sur la propriété ou sur les démarches à suivre.

Mentions légales

Terrain proposé par un partenaire foncier selon disponibilités et autorisation de publicité au prix de 42 720 €. Hors droit d'enregistrement et frais de notaire. Terrain + Maison proposés au prix de 265 000 € (Hors branchements et raccordements, papiers peints, peintures, revêtement de sol dans les chambres. Tarif modifiable sans préavis). Etiquette énergie : A. Différents modèles disponibles pour ce terrain. Assurances et garanties du constructeur (RC professionnelle, décennale, dommage ouvrage, garantie de remboursement de l'acompte, livraison à prix et délai convenu) : https://www.maisons-bernard-jambert.com/informations-legales/.

Contactez l'agence de Angers

02 41 77 17 17

    * Champs obligatoires

    Vos informations sont traitées par HEXAOM et transmises à un conseiller commercial qui vous contactera afin de répondre à votre demande. Les plans et images présentés sur notre site sont la propriété d’HEXAOM et ne peuvent pas être reproduits sans son accord. Pour retrouver notre politique de protection des données personnelles et exercer vos droits conformément à la « loi informatique et liberté » cliquez-ici.