Maison neuve à
Mazé (49630) Référence : RS2424845_1

Prix du projet : Maison avec Terrain

prix 204 500 €

  • 5 pièces
  • 3 chambres
  • Surface maison 85 m2

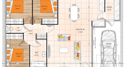
Maison T5 (85 m²) à vendre à Mazé
MAISON 5 PIÈCES NEUVE - PROCHE D'ANGERS
À quelques kilomètres d'Angers, nous sommes heureux de vous présenter en vente à Mazé (49630), cette maison de 5 pièces de plain-pied de 85 m² et de 406 m² de terrain. Elle propose trois chambres, une cuisine et une salle de bains.
La maison est neuve.
Il y a l'École Primaire Privée Sainte Marie et l'École Maternelle Publique Gaston Chaissac à moins de 10 minutes à pied. Niveau transports en commun, on trouve les gares Saint-Mathurin-sur-Loire et La Ménitré à moins de 10 minutes en voiture. L'autoroute A85 est accessible à 6 km. Il y a un tennis, deux commerces, deux boulangeries, un bureau de poste, une supérette et une boucherie-charcuterie à quelques minutes du bien.
Elle est proposée à l'achat pour 204 500 €.
Prenez contact avec Roman SALAS (tél : 02-41-77-17-17) pour toute information sur la maison ou sur les démarches à suivre. Maisons Bernard Jambert Angers vous accompagne dans tous vos projets immobiliers et à toutes les étapes de l'achat.

Mentions légales

Terrain proposé par un partenaire foncier selon disponibilités et autorisation de publicité au prix de 48 700 €. Hors droit d'enregistrement et frais de notaire. Terrain + Maison proposés au prix de 204 500 € (Hors branchements et raccordements, papiers peints, peintures, revêtement de sol dans les chambres. Tarif modifiable sans préavis). Etiquette énergie : A. Différents modèles disponibles pour ce terrain. Assurances et garanties du constructeur (RC professionnelle, décennale, dommage ouvrage, garantie de remboursement de l'acompte, livraison à prix et délai convenu) : https://www.maisons-bernard-jambert.com/informations-legales/.

Contactez l'agence de Angers

02 41 77 17 17

    * Champs obligatoires

    Vos informations sont traitées par HEXAOM et transmises à un conseiller commercial qui vous contactera afin de répondre à votre demande. Les plans et images présentés sur notre site sont la propriété d’HEXAOM et ne peuvent pas être reproduits sans son accord. Pour retrouver notre politique de protection des données personnelles et exercer vos droits conformément à la « loi informatique et liberté » cliquez-ici.