Maison neuve à
Méasnes
(23360) Référence :
KG2471385_3
Prix du projet : Maison avec Terrain
prix 158 500 €
- 4 pièces
- 3 chambres
- Surface maison 85 m2
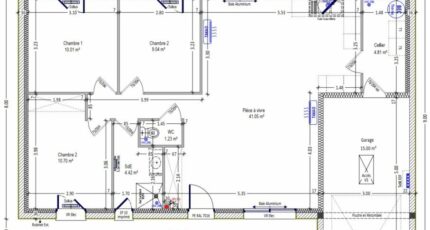
Projet de construction Maison F4 (85 m²) à Méasnes
EMPLACEMENT PRIVILÉGIÉ - MAISON 4 PIÈCES NEUVE
En vente : Maisons Bruno Petit MJB Châteauroux vous présente, bénéficiant d'un emplacement privilégié dans Méasnes (23360), cette maison de 4 pièces de plain-pied de 85 m².
Elle se divise en trois chambres, une cuisine et une salle de bains. Cette maison est neuve.
Le terrain de la propriété est de 2 340 m².
La maison se situe dans un secteur recherché. L'École Primaire Robert Desnos est implantée à moins de 10 minutes à pied.
Elle est proposée à l'achat pour 158 500 €.
Prenez contact avec notre agence (Kevin GRIMAUD : *6-22-14-89-67) pour tout renseignement sur le bien. Donnez vie à vos projets immobiliers avec Maisons Bruno Petit MJB Châteauroux.
Mentions légales
Terrain proposé par un partenaire foncier selon disponibilités et autorisation de publicité au prix de 20 000 €. Hors droit d'enregistrement et frais de notaire. Terrain + Maison proposés au prix de 158 500 € (Hors branchements et raccordements, papiers peints, peintures, revêtement de sol dans les chambres. Tarif modifiable sans préavis). Etiquette énergie : A. Différents modèles disponibles pour ce terrain. Assurances et garanties du constructeur (RC professionnelle, décennale, dommage ouvrage, garantie de remboursement de l'acompte, livraison à prix et délai convenu) : https://www.maisons-brunopetit.fr/mentions-legales/.Agence Bruno Petit MJB de Châteauroux (36000)
- Téléphone :
- 02 54 22 66 24
- Adressse :
- 360 avenue de la Châtre
36000 Châteauroux, France