Maison neuve à
Mées
(40990) Référence :
CP2314192_3
Prix du projet : Maison avec Terrain
prix 302 000 €
- 4 pièces
- 3 chambres
- Surface maison 95 m2
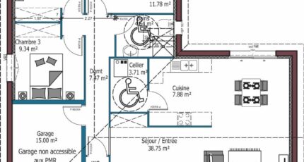
Cécile PÉNICAUT O6 69 29 46 66 des maisons MCA vous propose d'adapter le modèle Atlanta investisseur, sur ce joli terrain d'environ 572m², située sur la commune de Mées, dans un petit lotissement de 6 lots, aux portes de Dax, avec un accès direct à la quatre voies direction Bayonne / Mont de Marsan. 🚗
Dédié aux investisseurs, laissez-vous séduire par ce modèle de maison en L, entièrement adapté aux normes PMR. Avec son garage intégré et ses 3 chambres, chacune disposant d'un emplacement placard, cette villa lumineuse et généreuse facilitera le quotidien des familles. La cuisine est en partie ouverte sur le vaste salon-séjour tourné vers le jardin. Les lignes définies par le porche apportent une touche d'originalité à cette maison.
Vous serez séduits par le beau volume de ses chambres, et la grande luminosité de son espace de vie.
Le prix affiché comprend le terrain, les frais de notaire, les frais annexes (raccordements, bornage, asl), et cette maison livrée prête à décorer.
Pour vous accompagner dans votre projet de construction personnalisé, contactez vite Cécile PÉNICAUT au O6 69 29 46 66 66 à l'agence MCA Saint Paul Lès Dax, afin qu'elle vous accompagne et vous guide dans les démarches 🗝️🌟🏡
Agence Maisons de la Côte Atlantique de Saint-Paul-lès-Dax (40990)
- Téléphone :
- 05 58 35 44 71
- Adressse :
- 34 avenue de la liberté
40990 Saint-Paul-lès-Dax, France
