Maison neuve à
Melun
(77000) Référence :
HN2382756_1
Prix du projet : Maison avec Terrain
prix 320 000 €
- 5 pièces
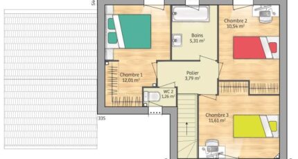
- 3 chambres
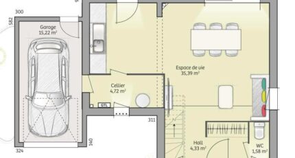
- Surface maison 90 m2
VENTE d'une maison de 5 pièces (90 m²) à Melun
IDÉALEMENT SITUÉE - MAISON 5 PIÈCES NEUVE
Au pied de la gare (Paris à 30 min par le Transilien R), votre agence Maisons France Confort Magny-le-Hongre est heureuse de vous proposer cette maison de 5 pièces de 90 m² et de 320 m² de terrain idéalement située dans Melun (77000).
Cette maison compte 2 niveaux. Elle offre trois chambres, une cuisine et une salle de bains. La maison est neuve.
Cette maison se trouve dans un secteur recherché. Tous les types d'écoles sont implantés à moins de 10 minutes à pied. Niveau transports en commun, on trouve la ligne de RER D (Melun) ainsi que 12 gares à moins de 10 minutes en voiture. Il y a un bassin de natation, une bibliothèque, des commerces, des boulangeries, deux supermarchés, des épiceries et une poissonnerie à quelques minutes à peine.
Son prix de vente est de 320 000 €.
Contactez Hugo NGUYEN (tél : 06-60-97-69-03) pour plus d'informations sur le bien. Maisons France Confort Magny-le-Hongre vous accompagne dans tous vos projets immobiliers et dans toutes vos démarches.
Annonce proposée par un Agent Commercial Partenaire.
Mentions légales
Terrain proposé par un partenaire foncier selon disponibilités et autorisation de publicité au prix de 140 000 €. Hors droit d'enregistrement et frais de notaire. Terrain + Maison proposés au prix de 320 000 € (Hors branchements et raccordements, papiers peints, peintures, revêtement de sol dans les chambres. Tarif modifiable sans préavis). Etiquette énergie : A. Différents modèles disponibles pour ce terrain. Assurances et garanties du constructeur (RC professionnelle, décennale, dommage ouvrage, garantie de remboursement de l'acompte, livraison à prix et délai convenu) : https://www.maisons-france-confort.fr/mentions-legales/. HEXAOM Services est enregistré auprès de l'ORIAS en tant que Courtier en financement, Niveau 1, sous le numéro 14001345.Agence Maisons France Confort de Magny-le-Hongre (77700)
- Téléphone :
- 01 84 80 92 96
- Adressse :
- 11 rue de Courtalin
77700 Magny-le-Hongre, France
