Maison neuve à
Melun
(77000) Référence :
FS2384745_1
Prix du projet : Maison avec Terrain
prix 298 000 €
- 5 pièces
- 3 chambres
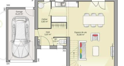
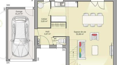
- Surface maison 90 m2
Maison de 5 pièces (90 m²) à vendre à Boissise-la-Bertrand
EMPLACEMENT PRIVILÉGIÉ - MAISON 5 PIÈCES NEUVE
À vendre : à deux pas du RER D (station Le Mée, 35 min de Paris), nous sommes heureux de vous proposer cette maison de 5 pièces de 90 m² et de 450 m² de terrain bénéficiant d'un emplacement privilégié dans Boissise-la-Bertrand (77350).
C'est une maison de 2 niveaux. Elle se divise en trois chambres, une cuisine et une salle de bains. La maison est neuve.
Cette propriété se situe dans un secteur prisé. L'École Primaire les Fontaines est implantée à moins de 10 minutes à pied. Côté transports, on trouve la ligne de RER D (Boissise-Le-Roi) ainsi que 13 gares à moins de 10 minutes en voiture.
Son prix de vente est de 298 000 €.
Contactez notre agence (Félix SOUMARMON : 06-10-24-97-84) pour toute information sur la maison, sur les démarches à suivre ou sur les modalités de vente.
Annonce proposée par un Agent Commercial Partenaire.
Mentions légales
Terrain proposé par un partenaire foncier selon disponibilités et autorisation de publicité au prix de 135 000 €. Hors droit d'enregistrement et frais de notaire. Terrain + Maison proposés au prix de 298 000 € (Hors branchements et raccordements, papiers peints, peintures, revêtement de sol dans les chambres. Tarif modifiable sans préavis). Etiquette énergie : A. Différents modèles disponibles pour ce terrain. Assurances et garanties du constructeur (RC professionnelle, décennale, dommage ouvrage, garantie de remboursement de l'acompte, livraison à prix et délai convenu) : https://www.maisons-france-confort.fr/mentions-legales/. HEXAOM Services est enregistré auprès de l'ORIAS en tant que Courtier en financement, Niveau 1, sous le numéro 14001345.Agence Maisons France Confort de Magny-le-Hongre (77700)
- Téléphone :
- 01 84 80 92 96
- Adressse :
- 11 rue de Courtalin
77700 Magny-le-Hongre, France
