Maison neuve à
Meschers-sur-Gironde
(17132) Référence :
VC2495791_4
Prix du projet : Maison avec Terrain
prix 367 200 €
- 4 pièces
- 3 chambres
- Surface maison 90 m2
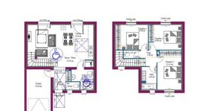
Véronique CANTEAU des maisons MCA de Royan, vous présente le modèle Citadine sur ce terrain d'environ 610 m2, idéalement situé sur la commune de Meschers sur Gironde à 400 m des plages.
Au rez-de-chaussée, elle offre un beau volume de plus de 37 m2, lumineux et convivial avec ses deux grandes baies vitrées, son salon-séjour avec cuisine ouverte.
L'étage est consacré à l'espace nuit avec les 3 chambres et la salle de bain.
Cette maison très agréable à vivre est entièrement personnalisable pour s'adapter à vos envies.
Le prix affiché comprend le terrain, les frais de notaire, et cette maison livrée prête à décorer.
Contactez vite votre conseillère Véronique CANTEAU au O7.86.18.39.78 à l'agence MCA de Royan, afin qu'elle vous guide dans les démarches et vous accompagne dans ce projet de construction personnalisé, aux normes RE2020.
Mentions légales
Idée de réalisation en modèle prêt à décorer sur l'un de nos terrains partenaires, sous réserve de disponibilités. Voir détails en agence.Agence Maisons de la Côte Atlantique de Royan (17200)
- Téléphone :
- 05 46 02 65 77
- Adressse :
- 75 Cours de l'Europe
17200 Royan, France
