Maison neuve à
Messy
(77410) Référence :
AR2258994_1
Prix du projet : Maison avec Terrain
prix 332 000 €
- 5 pièces
- 3 chambres
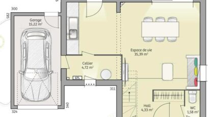
- Surface maison 90 m2
Maison de 5 pièces (90 m²) en vente à Messy
MAISON 5 PIÈCES NEUVE - PROCHE DE PARIS
À deux pas de la gare de Compans (Paris à 25 min par le Transilien K), en vente à Messy (77410), nous vous proposons cette maison de 5 pièces de 90 m² et de 321 m² de terrain. Son intérieur se divise en trois chambres, une cuisine et une salle de bains.
Il s'agit d'une maison de 2 niveaux. Elle est neuve.
L'École Primaire Jehan de Brie est implantée à moins de 10 minutes à pied. Niveau transports, il y a la ligne de RER B (Mitry-Claye) ainsi que six gares à moins de 10 minutes en voiture. On trouve une épicerie dans les environs.
Son prix de vente est de 332 000 €.
Contactez Alan RUBAL (07-68-78-63-84) pour obtenir de plus amples informations sur la maison, sur les démarches à suivre ou sur les modalités de vente.
Annonce proposée par un Agent Commercial Partenaire.
Mentions légales
Terrain proposé par un partenaire foncier selon disponibilités et autorisation de publicité au prix de 170 000 €. Hors droit d'enregistrement et frais de notaire. Maison proposée, avec un contrat de construction de maison individuelle, dans le cadre de la loi du 19/12/1990, au prix de 162 000 € (Hors branchements et raccordements, papiers peints, peintures, revêtement de sol dans les chambres, qui sont chiffrés dans les travaux qui restent à charge du client. Tarif modifiable sans préavis). Étiquette énergie : A. Différents modèles disponibles pour ce terrain. Assurances et garanties du constructeur comprises (RC professionnelle, décennale, dommage ouvrage).Agence Maisons France Confort de Magny-le-Hongre (77700)
- Téléphone :
- 01 84 80 92 96
- Adressse :
- 11 rue de Courtalin
77700 Magny-le-Hongre, France
