Maison neuve à
Mézens
(81800) Référence :
MB2488400_10
Prix du projet : Maison avec Terrain
prix 322 000 €
- 4 pièces
- 3 chambres
- Surface maison 125 m2
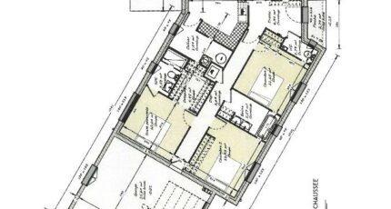
Maison de 4 pièces (125 m²) en vente à Mézens
MAISON 4 PIÈCES NEUVE - PROCHE DE SAINT SULPICE
À vendre : à quelques kilomètres de SAINT SULPICE, à Mézens (81800), Maisons France Confort Albi vous présente cette maison de 4 pièces de plain-pied de 125 m². Son intérieur inclut trois chambres, une cuisine et deux salles de bains.
Le terrain de cette maison s'étend sur 742 m².
La maison est neuve.
Son prix de vente est de 322 000 €.
Contactez notre agence au 05.63.43.56.40 pour tout renseignement sur la maison, sur les démarches à suivre ou sur les modalités de vente.
Annonce proposée par un Agent Commercial Partenaire.
Mentions légales
Terrain proposé par un partenaire foncier selon disponibilités et autorisation de publicité au prix de 90 000 €. Hors droit d'enregistrement et frais de notaire. Terrain + Maison proposés au prix de 322 000 € (Hors branchements et raccordements, papiers peints, peintures, revêtement de sol dans les chambres. Tarif modifiable sans préavis). Etiquette énergie : A. Différents modèles disponibles pour ce terrain. Assurances et garanties du constructeur (RC professionnelle, décennale, dommage ouvrage, garantie de remboursement de l'acompte, livraison à prix et délai convenu) : https://www.maisons-france-confort.fr/mentions-legales/. HEXAOM Services est enregistré auprès de l'ORIAS en tant que Courtier en financement, Niveau 1, sous le numéro 14001345.Agence Maisons France Confort de Albi (81000)
- Téléphone :
- 05 63 43 56 40
- Adressse :
- 187 avenue Colonel Teyssier
81000 Albi, France
