Maison neuve à
Mézidon-Canon (14270) Référence : AV2396451_2

Prix du projet : Maison avec Terrain

prix 182 100 €

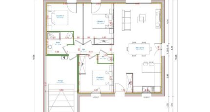
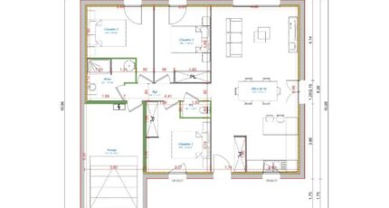
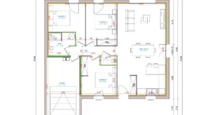
  • 5 pièces
  • 3 chambres
  • Surface maison 75 m2

Projet de construction - Mézidon Canon

Maisons France Confort pour propose un projet de construction de Plain pied,

Modèle en 3 ch avec de beau espace et des portes fenêtre pour un accès direct extérieur,
une pièce de vie confortable pour accueillir la famille
et une salle de bain avec douche ou baignoire selon vos envies

Etude complète GRATUITE ET SANS ENGAGEMENT

- Estimation budget global
- Plans personnalisés ou catalogues
- Aide à la recherche de terrain
- Optimisation du projet

Si vous avez un projet, même juste idée contacter moi pour que l'on puisse étudier les possibilité qui s'offre à vous
ANGELIQUE 06.48.23.57.76

Mentions légales

Terrain proposé par un partenaire foncier selon disponibilités et autorisation de publicité au prix de 32 100 €. Hors droit d'enregistrement et frais de notaire. Terrain + Maison proposés au prix de 182 100 € (Hors branchements et raccordements, papiers peints, peintures, revêtement de sol dans les chambres. Tarif modifiable sans préavis). Etiquette énergie : A. Différents modèles disponibles pour ce terrain. Assurances et garanties du constructeur (RC professionnelle, décennale, dommage ouvrage, garantie de remboursement de l'acompte, livraison à prix et délai convenu) : https://www.maisons-france-confort.fr/mentions-legales/. HEXAOM Services est enregistré auprès de l'ORIAS en tant que Courtier en financement, Niveau 1, sous le numéro 14001345.

Contactez l'agence de Lisieux

02 31 62 91 30

    * Champs obligatoires

    Vos informations sont traitées par HEXAOM et transmises à un conseiller commercial qui vous contactera afin de répondre à votre demande. Les plans et images présentés sur notre site sont la propriété d’HEXAOM et ne peuvent pas être reproduits sans son accord. Pour retrouver notre politique de protection des données personnelles et exercer vos droits conformément à la « loi informatique et liberté » cliquez-ici.