Maison neuve à
Mézidon-Canon
(14270) Référence :
AV2396451_3
Prix du projet : Maison avec Terrain
prix 190 000 €
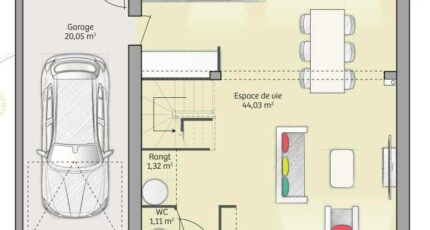
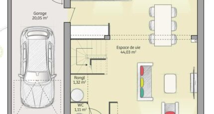
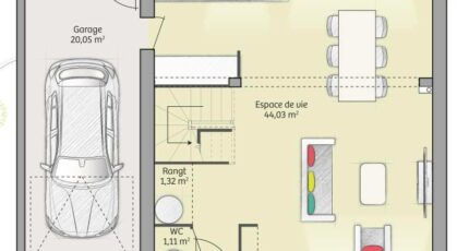
- 6 pièces
- 4 chambres
- Surface maison 91 m2
Projet de construction - Mézidon Canon
Maisons France Confort pour propose un projet de construction une maison à étage,
Modèle en 4 ch avec de beau espace,
une pièce de vie confortable pour accueillir la famille
et une salle de bain avec douche ou baignoire selon vos envies
Etude complète GRATUITE ET SANS ENGAGEMENT
- Estimation budget global
- Plans personnalisés ou catalogues
- Aide à la recherche de terrain
- Optimisation du projet
Si vous avez un projet, même juste idée contacter moi pour que l'on puisse étudier les possibilité qui s'offre à vous
ANGELIQUE 06.48.23.57.76
Mentions légales
Terrain proposé par un partenaire foncier selon disponibilités et autorisation de publicité au prix de 32 100 €. Hors droit d'enregistrement et frais de notaire. Terrain + Maison proposés au prix de 190 000 € (Hors branchements et raccordements, papiers peints, peintures, revêtement de sol dans les chambres. Tarif modifiable sans préavis). Etiquette énergie : A. Différents modèles disponibles pour ce terrain. Assurances et garanties du constructeur (RC professionnelle, décennale, dommage ouvrage, garantie de remboursement de l'acompte, livraison à prix et délai convenu) : https://www.maisons-france-confort.fr/mentions-legales/. HEXAOM Services est enregistré auprès de l'ORIAS en tant que Courtier en financement, Niveau 1, sous le numéro 14001345.Agence Maisons France Confort de Lisieux (14100)
- Téléphone :
- 02 31 62 91 30
- Adressse :
- 41 boulevard Jeanne d'Arc
14100 Lisieux, France
