Maison neuve à
Mios (33380) Référence : LC600MIOS_3

Prix du projet : Maison avec Terrain

prix 295 000 €

  • 5 pièces
  • 3 chambres
  • Surface maison 100 m2

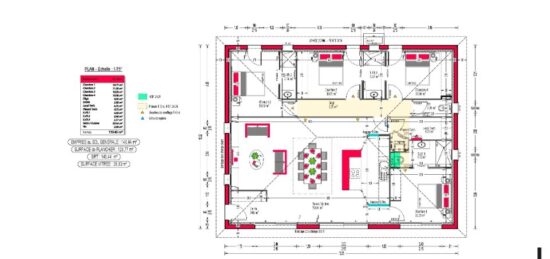
Mios : maison F5 (100 m²) en vente
MAISON 5 PIÈCES NEUVE - PROCHE BASSIN
À vendre : localisée à 14 km de la côte atlantique et à deux pas de Mérignac, à Mios (33380), votre agence Batisoft La Teste-de-Buch est ravie de vous proposer cette maison de 5 pièces de plain-pied de 100 m².
Conçue de plain-pied, elle se divise en trois chambres, une cuisine et une salle de bains. Cette maison est neuve.
Le terrain du bien est de 600 m².
L'École Maternelle la Fauvette Pitchou, l'École Élementaire les Ecureuils, l'École Secondaire Privée Montessori Bordeaux Mios, l'École Primaire Privée Montessori Mios Campus et le Collège Montessori Bordeaux Mios se trouvent à moins de 10 minutes à pied. Côté transports en commun, il y a les gares Biganos Facture et Le Teich à moins de 10 minutes en voiture. Les autoroutes A660 et A63 sont accessibles à moins de 8 km. On trouve un tennis, deux boulangeries, des commerces, un bureau de poste et une boucherie-charcuterie à quelques minutes à peine.
Elle est proposée à l'achat pour 295 000 €.
Contactez Laurent CHAMPEIL (05-57-15-12-37) pour toute question sur la maison, sur les modalités de vente et sur les démarches à suivre. Concrétisez vos projets immobiliers avec Batisoft La Teste-de-Buch.

Mentions légales

Idée de réalisation en modèle prêt à décorer sur l’un de nos terrains partenaires, sous réserve de disponibilités. Voir détails en agence.

Contactez l'agence de La Teste-de-Buch

05 57 15 12 37

    * Champs obligatoires

    Vos informations sont traitées par HEXAOM et transmises à un conseiller commercial qui vous contactera afin de répondre à votre demande. Les plans et images présentés sur notre site sont la propriété d’HEXAOM et ne peuvent pas être reproduits sans son accord. Pour retrouver notre politique de protection des données personnelles et exercer vos droits conformément à la « loi informatique et liberté » cliquez-ici.