Maison neuve à
Mios
(33380) Référence :
LC2484390_6
Prix du projet : Maison avec Terrain
prix 320 000 €
- 4 pièces
- 3 chambres
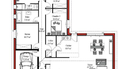
- Surface maison 100 m2
VENTE d'une maison F4 (100 m²) à Mios
PROCHE BASSIN D'ARCACHON - MAISON 4 PIÈCES NEUVE
À vendre à 14 km de l'océan Atlantique et à deux pas de Mérignac, à Mios (33380), venez découvrir cette maison de 4 pièces de plain-pied de 100 m² et de 605 m² de terrain.
Son intérieur dispose de trois chambres, d'une cuisine et d'une salle de bains. Cette maison est neuve.
L'École Maternelle la Fauvette Pitchou, l'École Élementaire les Ecureuils, l'École Secondaire Privée Montessori Bordeaux Mios, l'École Primaire Privée Montessori Mios Campus et le Collège Montessori Bordeaux Mios sont implantés à moins de 10 minutes à pied. Niveau transports, il y a les gares Biganos Facture et Le Teich à moins de 10 minutes en voiture. Les autoroutes A660 et A63 sont accessibles à moins de 8 km. On trouve un tennis, deux boulangeries, des commerces, une boucherie-charcuterie et un bureau de poste à proximité du bien.
Elle est proposée à l'achat pour 320 000 €.
Contactez notre agence (CHAMPEIL Laurent : 05-57-15-12-37) pour obtenir de plus amples renseignements sur la maison ou sur les modalités de vente.
Mentions légales
Idée de réalisation en modèle prêt à décorer sur l’un de nos terrains partenaires, sous réserve de disponibilités. Voir détails en agence.Agence Batisoft de La Teste-de-Buch (33260)
- Téléphone :
- 05 57 15 12 37
- Adressse :
- 27, Boulevard de Cazaux
33260 La Teste-de-Buch, France
