Maison neuve à
Mios
(33380) Référence :
LC2484405_4
Prix du projet : Maison avec Terrain
prix 420 000 €
- 4 pièces
- 3 chambres
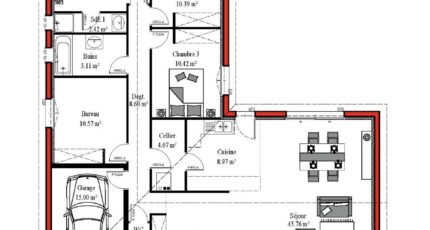
- Surface maison 125 m2
Maison T4 (125 m²) à vendre à Mios
PROCHE DE MÉRIGNAC - MAISON 4 PIÈCES NEUVE
À 14 km de la côte atlantique et à quelques kilomètres de Mérignac, ayez le coup de coeur pour en vente à Mios (33380), cette maison de 4 pièces de plain-pied de 125 m² et de 650 m² de terrain.
Son intérieur inclut trois chambres, une cuisine et une salle de bains. La maison est neuve.
Il y a l'École Maternelle la Fauvette Pitchou, l'École Élementaire les Ecureuils, l'École Secondaire Privée Montessori Bordeaux Mios, l'École Primaire Privée Montessori Mios Campus et le Collège Montessori Bordeaux Mios à moins de 10 minutes à pied. Niveau transports en commun, on trouve les gares Biganos Facture et Le Teich à moins de 10 minutes en voiture. Les autoroutes A660 et A63 sont accessibles à moins de 8 km. Il y a un tennis, deux boulangeries, des commerces, un bureau de poste et une boucherie-charcuterie à quelques minutes du bien.
Son prix de vente est de 420 000 €.
Contactez Laurent CHAMPEIL (tél : 05-57-15-12-37) pour tout renseignement sur la maison.
Mentions légales
Idée de réalisation en modèle prêt à décorer sur l’un de nos terrains partenaires, sous réserve de disponibilités. Voir détails en agence.Agence Batisoft de La Teste-de-Buch (33260)
- Téléphone :
- 05 57 15 12 37
- Adressse :
- 27, Boulevard de Cazaux
33260 La Teste-de-Buch, France
