Maison neuve à
Mios
(33380) Référence :
LC2484489_4
Prix du projet : Maison avec Terrain
prix 385 000 €
- 4 pièces
- 4 chambres
- Surface maison 132 m2
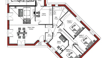
Mios : maison de 4 pièces (132 m²) en vente
PROCHE DE MÉRIGNAC - MAISON 4 PIÈCES NEUVE
À vendre : à 14 km de l'océan Atlantique et à 30 km de Mérignac, notre agence Batisoft La Teste-de-Buch est ravie de vous présenter cette maison de 4 pièces de plain-pied de 132 m² et de 630 m² de terrain à Mios (33380). Conçue de plain-pied, elle comporte quatre chambres, une cuisine et une salle de bains.
Cette maison est neuve.
Il y a l'École Maternelle la Fauvette Pitchou, l'École Élementaire les Ecureuils, l'École Secondaire Privée Montessori Bordeaux Mios, l'École Primaire Privée Montessori Mios Campus et le Collège Montessori Bordeaux Mios à moins de 10 minutes à pied. Niveau transports, on trouve les gares Biganos Facture et Le Teich à moins de 10 minutes en voiture. Les autoroutes A660 et A63 sont accessibles à moins de 8 km. Il y a un tennis, deux boulangeries, des commerces, un bureau de poste et une boucherie-charcuterie à proximité.
Elle est proposée à l'achat pour 385 000 €.
Prenez contact avec notre agence (Laurent CHAMPEIL : 05-57-15-12-37) pour toute question sur cette maison. Batisoft La Teste-de-Buch est là pour vous accompagner à toutes les étapes de votre projet.
Mentions légales
Idée de réalisation en modèle prêt à décorer sur l’un de nos terrains partenaires, sous réserve de disponibilités. Voir détails en agence.Agence Batisoft de La Teste-de-Buch (33260)
- Téléphone :
- 05 57 15 12 37
- Adressse :
- 27, Boulevard de Cazaux
33260 La Teste-de-Buch, France
