Maison neuve à
Moliets-et-Maa
(40660) Référence :
JM2484483_1
Prix du projet : Maison avec Terrain
prix 821 000 €
- 4 pièces
- 4 chambres
- Surface maison 171 m2
Sur la commune très prisée de Moliets-et-Maâ, découvrez une opportunité rare avec ce terrain de 2 088 m², idéal pour concrétiser votre projet de vie dans un environnement exceptionnel.
Située entre océan, forêt landaise et golf de renom, la commune de Moliets-et-Maâ séduit par son cadre naturel préservé, ses plages sauvages, ses pistes cyclables et sa qualité de vie recherchée. Un emplacement idéal pour les amoureux de nature, de surf ou tout simplement de tranquillité.
Nous vous proposons une magnifique maison de 170 m², alliant modernité et esprit landais avec de belles touches de bois.
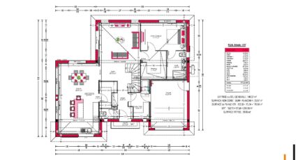
Au rez-de-chaussée, vous profitez d'une grande suite parentale avec dressing et salle d'eau, d'un grand garage ainsi que d'une vaste pièce de vie. Celle-ci se compose d'un espace cuisine / salle à manger d'environ 40 m² et d'un salon légèrement en retrait, offrant à la fois ouverture et intimité. L'ensemble s'ouvre harmonieusement sur l'extérieur avec un accès direct à une terrasse , idéale pour profiter des beaux jours.
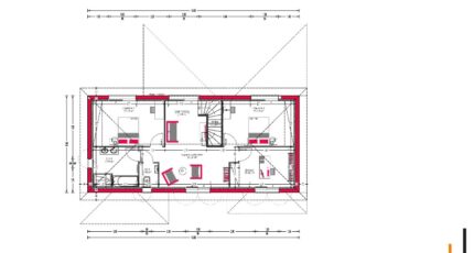
À l'étage, trois chambres confortables ainsi qu'une salle de bain viennent compléter l'espace nuit.
Maison contemporaine respectant la réglementation RE2020, elle vous garantit confort thermique, économies d'énergie et prestations de qualité.
Chaque projet étant unique, cette maison est entièrement personnalisable selon vos envies et vos besoins.
N'hésitez pas à contacter Jérôme Masson pour concevoir ensemble votre projet sur mesure.
Mentions légales
Terrain proposé par un partenaire foncier selon disponibilité dans le cadre d’un projet de construction avec Couleur Villas. Les descriptions, photographies, surfaces et prix illustrant l’annonce sont fournies à titre indicatif et ne sont pas contractuels. Non soumis au DPE. Différents modèles disponibles.Agence Couleur Villas de Léon (40550)
- Téléphone :
- 05 47 55 60 93
- Adressse :
- 204 Grand-Rue
40550 Léon, France