Maison neuve à 
  Monceaux-en-Bessin
 (14400)  Référence :
 JS2322561_5 
Prix du projet : Maison avec Terrain
prix 256 000 €
- 7 pièces
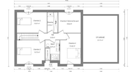
- 5 chambres
- Surface maison 120 m2
Bayeux : maison T7 (120 m²) en vente
MAISON 7 PIÈCES NEUVE - PROCHE DE CAEN
À 9 km de la Manche et à deux pas de Caen, votre agence Maisons France Confort Bayeux est heureuse de vous proposer cette maison de 7 pièces de 120 m² à vendre à Bayeux (14400). Elle inclut cinq chambres, une cuisine et deux salles de bains.
Le terrain de la propriété est de 301 m².
Cette maison comporte 2 niveaux. Elle est neuve.
On trouve des écoles du primaire et du secondaire à moins de 10 minutes à pied, tout comme une structure d'accueil pour les enfants en bas âge. Côté transports, il y a la gare Bayeux juste à côté. La nationale N13 est accessible à 3 km. On trouve une bibliothèque, des commerces, des boulangeries, un supermarché, trois épiceries et des boucheries-charcuteries dans les environs. Enfin, 2 marchés animent les environs.
Son prix de vente est de 256 000 €.
Contactez notre constructeur (HUE Emilie : 06-29-81-46-66) pour toute question sur cette maison, sur les modalités de vente ou sur les démarches à suivre. Maisons France Confort Bayeux est là pour vous accompagner dans tous vos projets immobiliers.
Annonce proposée par un Agent Commercial Partenaire.
Mentions légales
Terrain proposé par un partenaire foncier selon disponibilités et autorisation de publicité au prix de 56 000 €. Hors droit d'enregistrement et frais de notaire. Maison proposée, avec un contrat de construction de maison individuelle, dans le cadre de la loi du 19/12/1990, au prix de 200 000 € (Hors branchements et raccordements, papiers peints, peintures, revêtement de sol dans les chambres, qui sont chiffrés dans les travaux qui restent à charge du client. Tarif modifiable sans préavis). Étiquette énergie : A. Différents modèles disponibles pour ce terrain. Assurances et garanties du constructeur comprises (RC professionnelle, décennale, dommage ouvrage).Agence Maisons France Confort de Bayeux (14400)
- Téléphone :
- 02 31 51 20 91
- Adressse :
-  2, rue Saint Loup
 14400 Bayeux, France
 
  
  
  
  
  
 