Maison neuve à
Monceaux-en-Bessin
(14400) Référence :
JS2322561_8
Prix du projet : Maison avec Terrain
prix 221 000 €
- 6 pièces
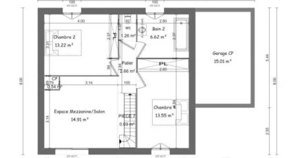
- 4 chambres
- Surface maison 110 m2
VENTE d'une maison de 6 pièces (110 m²) à Bayeux
MAISON 6 PIÈCES NEUVE - PROCHE DE CAEN
À vendre : située à 9 km de la Manche et à 26 km de Caen, Maisons France Confort Bayeux vous propose à Bayeux (14400), cette maison de 6 pièces de 110 m². Son intérieur propose quatre chambres, une cuisine et deux salles de bains.
Le terrain de la propriété est de 301 m².
C'est une maison de 2 niveaux. Elle est neuve.
On trouve des établissements scolaires du primaire et du secondaire à moins de 10 minutes à pied, tout comme une crèche. Niveau transports en commun, il y a la gare Bayeux dans un rayon de 1 km. La nationale N13 est accessible à 3 km. On trouve une bibliothèque, des commerces, des boulangeries, un supermarché, un bureau de poste et trois épiceries à proximité de la maison. 2 marchés animent le quartier.
Elle est proposée à l'achat pour 221 000 €.
Contactez notre agence (Emilie HUE : 06-29-81-46-66) pour toute information sur cette maison. Donnez vie à vos projets immobiliers avec Maisons France Confort Bayeux.
Annonce proposée par un Agent Commercial Partenaire.
Mentions légales
Terrain proposé par un partenaire foncier selon disponibilités et autorisation de publicité au prix de 56 000 €. Hors droit d'enregistrement et frais de notaire. Maison proposée, avec un contrat de construction de maison individuelle, dans le cadre de la loi du 19/12/1990, au prix de 165 000 € (Hors branchements et raccordements, papiers peints, peintures, revêtement de sol dans les chambres, qui sont chiffrés dans les travaux qui restent à charge du client. Tarif modifiable sans préavis). Étiquette énergie : A. Différents modèles disponibles pour ce terrain. Assurances et garanties du constructeur comprises (RC professionnelle, décennale, dommage ouvrage).Agence Maisons France Confort de Bayeux (14400)
- Téléphone :
- 02 31 51 20 91
- Adressse :
- 2, rue Saint Loup
14400 Bayeux, France
