Maison neuve à
Moncheaux
(59283) Référence :
MH2424529_1
Prix du projet : Maison avec Terrain
prix 392 000 €
- 8 pièces
- 4 chambres
- Surface maison 127 m2
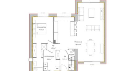
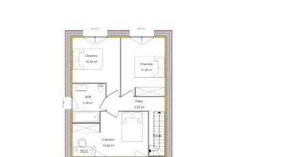
VENTE : maison F8 (127 m²) à Moncheaux
EMPLACEMENT PRIVILÉGIÉ - MAISON 8 PIÈCES NEUVE
À vendre à 23 km de la frontière belge et à deux pas de Lille, nous vous présentons, bénéficiant d'un emplacement privilégié dans Moncheaux (59283), cette maison de 8 pièces de 127 m². Elle offre quatre chambres, une cuisine et deux salles de bains.
Le terrain de la maison s'étend sur 543 m².
C'est une maison de 2 niveaux. Elle est neuve.
Elle se situe dans un secteur attractif. On y trouve une école primaire. Côté transports en commun, on trouve neuf gares à moins de 10 minutes en voiture. Les autoroutes A21, A1 et A23 sont accessibles à moins de 10 km. Commerces à proximités.
Elle est proposée à l'achat pour 392 000 €.
N'hésitez pas à prendre contact avec Marie HALFTERMEYER (o6-75-79-45-42) pour toute question sur la maison ou sur les modalités de vente.
Mentions légales
Terrain proposé par un partenaire foncier selon disponibilités et autorisation de publicité au prix de 119 000 €. Hors droit d'enregistrement et frais de notaire. Terrain + Maison proposés au prix de 392 000 € (Hors branchements et raccordements, papiers peints, peintures, revêtement de sol dans les chambres. Tarif modifiable sans préavis). Etiquette énergie : A. Différents modèles disponibles pour ce terrain. Assurances et garanties du constructeur (RC professionnelle, décennale, dommage ouvrage, garantie de remboursement de l'acompte, livraison à prix et délai convenu) : https://www.maisons-france-confort.fr/mentions-legales/. HEXAOM Services est enregistré auprès de l'ORIAS en tant que Courtier en financement, Niveau 1, sous le numéro 14001345.Agence Maisons France Confort de Béthune (62400)
- Téléphone :
- 03 21 02 07 45
- Adressse :
- 112 bd Jean Moulin
62400 Béthune, France
