Maison neuve à
Moncheaux
(59283) Référence :
MH2424529_2
Prix du projet : Maison avec Terrain
prix 281 000 €
- 5 pièces
- 3 chambres
- Surface maison 83 m2
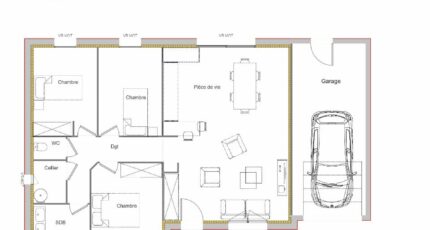
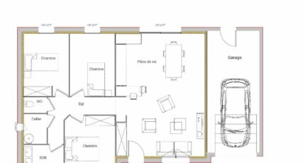
Maison T5 (83 m²) en vente à Moncheaux
EMPLACEMENT PRIVILÉGIÉ - MAISON 5 PIÈCES NEUVE
À vendre : localisée à quelques kilomètres de la Belgique et à 20 km de Lille, bénéficiant d'un emplacement privilégié dans Moncheaux (59283), nous sommes ravis de vous présenter cette maison de 5 pièces de plain-pied de 83 m² et de 543 m² de terrain. Conçue de plain-pied, elle inclut trois chambres, une cuisine et une salle de bains.
Cette maison est neuve.
Elle se trouve dans un secteur recherché. Une école primaire y est implantée. Niveau transports en commun, Plusieurs gares à moins de 10 minutes en voiture. Les autoroutes A21, A1 et A23 sont accessibles à moins de 10 km. Commerces à proximités.
Elle est proposée à l'achat pour 281 000 €.
Prenez contact avec Marie HALFTERMEYER (tél : O6-75-79-45-42) pour plus d'informations sur cette maison, sur les modalités de vente ou sur les démarches à suivre. Faites de vos projets immobiliers une réalité avec Maisons France Confort Béthune.
Mentions légales
Terrain proposé par un partenaire foncier selon disponibilités et autorisation de publicité au prix de 119 000 €. Hors droit d'enregistrement et frais de notaire. Terrain + Maison proposés au prix de 281 000 € (Hors branchements et raccordements, papiers peints, peintures, revêtement de sol dans les chambres. Tarif modifiable sans préavis). Etiquette énergie : A. Différents modèles disponibles pour ce terrain. Assurances et garanties du constructeur (RC professionnelle, décennale, dommage ouvrage, garantie de remboursement de l'acompte, livraison à prix et délai convenu) : https://www.maisons-france-confort.fr/mentions-legales/. HEXAOM Services est enregistré auprès de l'ORIAS en tant que Courtier en financement, Niveau 1, sous le numéro 14001345.Agence Maisons France Confort de Béthune (62400)
- Téléphone :
- 03 21 02 07 45
- Adressse :
- 112 bd Jean Moulin
62400 Béthune, France
