Maison neuve à
Mondonville
(31700) Référence :
SP2226355_4
Prix du projet : Maison avec Terrain
prix 577 000 €
- 6 pièces
- 4 chambres
- Surface maison 110 m2
Et si vous faisiez construire votre propre maison dans un environnement paisible et recherché, à quelques minutes de Toulouse ?
À Mondonville, nous vous proposons un projet de construction complet, en partenariat avec Maisons France Confort Tournefeuille, à partir de 577 000 €.
🏡 Ce projet inclut :
Un terrain viabilisé, situé dans un quartier agréable,
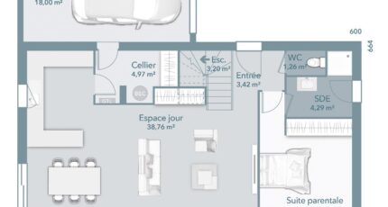
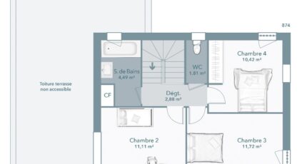
La construction d'une maison familiale etage avec :
4 belles chambres,
Dont une suite parentale avec salle d'eau et dressing,
Une pièce de vie lumineuse avec cuisine ouverte,
Un garage attenant,
Et de nombreuses possibilités de personnalisation.
Vous profitez d'une réalisation de qualité, avec toutes les garanties constructeur, un suivi rigoureux, et 400 points de contrôle tout au long du chantier.
✨ La maison est livrée prête à décorer, c'est-à-dire hors revêtements muraux, peintures et cuisine équipée, pour vous laisser le plaisir d'aménager les finitions à votre goût.
📌 Important :
Le prix indiqué n'inclut pas :
Les frais de notaire,
Les raccordements aux réseaux (eau, électricité, télécoms, eaux usées),
Les différentes taxes liées à la construction (taxe d'aménagement, PFAC, etc.),
Les frais de dossier bancaire et l'assurance de prêt.
💡 Vous êtes primo-accédant ? Ce projet peut bénéficier du nouveau Prêt à Taux Zéro (PTZ), car Mondonville est en zone éligible !
Une belle opportunité pour alléger votre financement, sous conditions de ressources.
Mais même sans PTZ, c'est un projet solide, bien situé, et encadré par un constructeur reconnu.
📞 Contactez sans attendre Maisons France Confort Tournefeuille au 05 61 16 47 77,
et nous étudierons ensemble votre projet de maison personnalisée sur ce terrain, avant toute mise en relation avec notre partenaire foncie
Annonce proposée par un Agent Commercial Partenaire.
Mentions légales
Terrain proposé par un partenaire foncier selon disponibilités et autorisation de publicité au prix de 127 000 €. Hors droit d'enregistrement et frais de notaire. Maison proposée, avec un contrat de construction de maison individuelle, dans le cadre de la loi du 19/12/1990, au prix de 450 000 € (Hors branchements et raccordements, papiers peints, peintures, revêtement de sol dans les chambres, qui sont chiffrés dans les travaux qui restent à charge du client. Tarif modifiable sans préavis). Étiquette énergie : A. Différents modèles disponibles pour ce terrain. Assurances et garanties du constructeur comprises (RC professionnelle, décennale, dommage ouvrage).Agence Maisons France Confort de Tournefeuille (31170)
- Téléphone :
- 05 61 16 47 77
- Adressse :
- 114 chemin de Larramet
31170 Tournefeuille, France
