Maison neuve à
Mongauzy (33190) Référence : SB2449111_2

Prix du projet : Maison avec Terrain

prix 270 700 €

  • 5 pièces
  • 4 chambres
  • Surface maison 112 m2

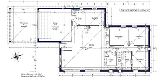
Maison de caractère au style traditionnel - Mongauzy (33190)

Nous vous proposons un projet de maison en L de 112 m² habitables, inspiré du style traditionnel avec beaucoup de charme, intégrant des éléments architecturaux tels que colombages et parements de façade, pour un rendu élégant et authentique.

La maison se compose de :

-Une grande pièce de vie lumineuse de plus de 50 m², avec de belles ouvertures sur l'extérieur
-Une suite parentale avec salle d'eau et dressing
-3 à 4 chambres selon vos besoins
-Une maison fonctionnelle, lumineuse et entièrement personnalisable

Ce projet est entièrement sur mesure, afin de s'adapter à vos envies et à votre mode de vie.

Situation idéale - Vue panoramique

Situé sur la commune de Mongauzy (33190), ce projet de construction terrain + maison bénéficie d'un environnement calme avec vue panoramique dégagée et une belle exposition.

Le terrain, d'une superficie d'environ 830 m², est viabilisé et dispose d'une surface de plancher autorisée de 300 m², permettant la réalisation d'un projet architectural de qualité.

Conditions du projet

Projet de construction en annonce incluant Terrain, Construction, Frais de notaire, VRD et viabilisation.


Contactez Sophia Barrere
Alpha Constructions - Agence de Langon

Nous vous accompagnons à chaque étape, de la conception de votre maison jusqu'à sa réalisation, pour un projet serein.

Mentions légales

Terrain proposé par un partenaire foncier selon disponibilité dans le cadre d’un projet de construction avec Alpha Constructions. Les descriptions, photographies, surfaces et prix illustrant l’annonce sont fournies à titre indicatif et ne sont pas contractuels. Non soumis au DPE. Différents modèles disponibles.

Contactez l'agence de Langon

05 57 98 50 94

    * Champs obligatoires

    Vos informations sont traitées par HEXAOM et transmises à un conseiller commercial qui vous contactera afin de répondre à votre demande. Les plans et images présentés sur notre site sont la propriété d’HEXAOM et ne peuvent pas être reproduits sans son accord. Pour retrouver notre politique de protection des données personnelles et exercer vos droits conformément à la « loi informatique et liberté » cliquez-ici.