Maison neuve à
Mons-en-Pévèle (59246) Référence : TH2441423_13

Prix du projet : Maison avec Terrain

prix 322 915 €

  • 5 pièces
  • 4 chambres
  • Surface maison 113 m2

MAISON OSSATURE BOIS

VENTE : maison T5 (113 m²) à Mons-en-Pévèle
EMPLACEMENT PRIVILÉGIÉ - MAISON 5 PIÈCES NEUVE
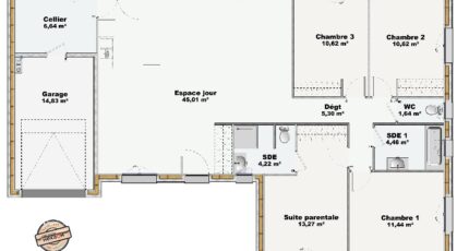
Nous sommes heureux de vous proposer, bénéficiant d'un emplacement d'exception dans Mons-en-Pévèle (59246), cette maison de 5 pièces de plain-pied de 113 m². Elle compte quatre chambres, une cuisine et deux salles de bains.
Le terrain de la maison s'étend sur 406 m².
La maison est neuve.
Elle est située dans un quartier recherché. On y trouve une école primaire. Côté transports, on trouve 3 gares à moins de 10 minutes en voiture. Il y a une bibliothèque, un tennis, deux commerces, une boulangerie et une boucherie-charcuterie à quelques minutes à peine.
Elle est proposée à l'achat pour 322 915 €.
Prenez contact avec Thomas HAUSTRATE (tél : 06-49-81-47-04) pour toute information sur cette maison et sur les démarches à suivre. Maisons France Confort Hénin-Beaumont vous accompagne dans tous vos projets immobiliers et à toutes les étapes de votre projet.

Mentions légales

Terrain proposé par un partenaire foncier selon disponibilités et autorisation de publicité au prix de 94 700 €. Hors droit d'enregistrement et frais de notaire. Terrain + Maison proposés au prix de 322 915 € (Hors branchements et raccordements, papiers peints, peintures, revêtement de sol dans les chambres. Tarif modifiable sans préavis). Etiquette énergie : A. Différents modèles disponibles pour ce terrain. Assurances et garanties du constructeur (RC professionnelle, décennale, dommage ouvrage, garantie de remboursement de l'acompte, livraison à prix et délai convenu) : https://www.maisons-france-confort.fr/mentions-legales/. HEXAOM Services est enregistré auprès de l'ORIAS en tant que Courtier en financement, Niveau 1, sous le numéro 14001345.

Contactez l'agence de Hénin-Beaumont

03 21 14 37 05

    * Champs obligatoires

    Vos informations sont traitées par HEXAOM et transmises à un conseiller commercial qui vous contactera afin de répondre à votre demande. Les plans et images présentés sur notre site sont la propriété d’HEXAOM et ne peuvent pas être reproduits sans son accord. Pour retrouver notre politique de protection des données personnelles et exercer vos droits conformément à la « loi informatique et liberté » cliquez-ici.