Maison neuve à
Mont-Bernanchon
(62350) Référence :
FW2380942_6
Prix du projet : Maison avec Terrain
prix 230 000 €
- 5 pièces
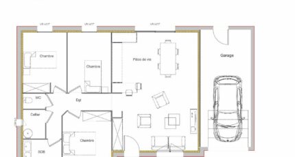
- 3 chambres
- Surface maison 83 m2
VENTE d'une maison de 5 pièces (83 m²) à Mont-Bernanchon
MAISON 5 PIÈCES NEUVE - PROCHE DE BETHUNE
En vente : située à 26 km de la frontière belge et à quelques kilomètres de Lens, notre agence Maisons France Confort Béthune est ravie de vous présenter cette maison de 5 pièces de plain-pied de 83 m² à Mont-Bernanchon (62350).
Conçue de plain-pied, elle se divise en trois chambres, une cuisine et une salle de bains. Cette maison est neuve.
Le terrain du bien s'étend sur 2 300 m².
L'École Primaire les Gorges Bleues est implantée à moins de 10 minutes à pied. Niveau transports, il y a sept gares à moins de 10 minutes en voiture. L'autoroute A26 est accessible à 9 km. On trouve une bibliothèque et un tennis dans les environs.
Elle est à vendre pour la somme de 230 000 €.
Prenez contact avec Franck WALRYCK (tél : O6-80-22-74-64) pour plus d'informations sur cette maison. Faites de vos projets immobiliers une réalité avec Maisons France Confort Béthune.
Mentions légales
Terrain proposé par un partenaire foncier selon disponibilités et autorisation de publicité au prix de 70 500 €. Hors droit d'enregistrement et frais de notaire. Terrain + Maison proposés au prix de 230 000 € (Hors branchements et raccordements, papiers peints, peintures, revêtement de sol dans les chambres. Tarif modifiable sans préavis). Etiquette énergie : A. Différents modèles disponibles pour ce terrain. Assurances et garanties du constructeur (RC professionnelle, décennale, dommage ouvrage, garantie de remboursement de l'acompte, livraison à prix et délai convenu) : https://www.maisons-france-confort.fr/mentions-legales/. HEXAOM Services est enregistré auprès de l'ORIAS en tant que Courtier en financement, Niveau 1, sous le numéro 14001345.Agence Maisons France Confort de Béthune (62400)
- Téléphone :
- 03 21 02 07 45
- Adressse :
- 112 bd Jean Moulin
62400 Béthune, France
