Maison neuve à
Montbazin
(34560) Référence :
LR2489443_2
Prix du projet : Maison avec Terrain
prix 333 000 €
- 4 pièces
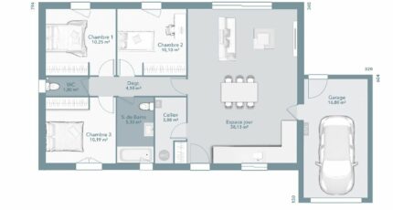
- 3 chambres
- Surface maison 83 m2
Montbazin : maison T4 (83 m²) en vente
IDÉALEMENT SITUÉE - MAISON 4 PIÈCES NEUVE
À vendre à 15minutes de Sète, et 20 minutes de Montpellier,, Maisons France Confort Montpellier vous propose, idéalement située dans Montbazin (34560), cette maison de 4 pièces de plain-pied de 83 m². Elle offre trois chambres, une cuisine et une salle de bains.
Le terrain du bien est de 485 m².
La maison est neuve.
Cette maison se situe dans un secteur prisé. L'École Primaire Valfalis est implantée à moins de 10 minutes à pied. Niveau transports, on trouve deux gares (Vic-Mireval et Frontignan) à moins de 10 minutes en voiture. On trouve un accès à l'autoroute A9 à 4 km. Il y a un tennis et un bureau de poste à quelques minutes.
Elle est à vendre pour la somme de 333 000 €.
Contactez notre agence (ROMERA Lionel : 06-30-39-77-79) pour obtenir de plus amples renseignements sur la maison, sur les modalités de vente ou sur les démarches à suivre.
Annonce proposée par un Agent Commercial Partenaire.
Mentions légales
Terrain proposé par un partenaire foncier selon disponibilités et autorisation de publicité au prix de 179 000 €. Hors droit d'enregistrement et frais de notaire. Terrain + Maison proposés au prix de 333 000 € (Hors branchements et raccordements, papiers peints, peintures, revêtement de sol dans les chambres. Tarif modifiable sans préavis). Etiquette énergie : A. Différents modèles disponibles pour ce terrain. Assurances et garanties du constructeur (RC professionnelle, décennale, dommage ouvrage, garantie de remboursement de l'acompte, livraison à prix et délai convenu) : https://www.maisons-france-confort.fr/mentions-legales/. HEXAOM Services est enregistré auprès de l'ORIAS en tant que Courtier en financement, Niveau 1, sous le numéro 14001345.Agence Maisons France Confort de Montpellier (34000)
- Téléphone :
- 04 67 64 85 11
- Adressse :
- 48, impasse Louis Ferdinand Herold
34000 Montpellier, France
