Maison neuve à
Montcaret
(24230) Référence :
DL2453143_2
Prix du projet : Maison avec Terrain
prix 211 400 €
- 5 pièces
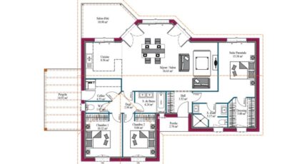
- 3 chambres
- Surface maison 107 m2
David LOPES des maisons MCA vous propose d'adapter le modèle Lumière, sur ce joli terrain d'environ 2774m², sur la commune de Montcaret, entre Vélines et Castillon la Bataille.
Cette maison contemporaine est composée d'un vaste salon prolongé par une cuisine ouverte, vous profiterez donc d'un espace de vie de plus de 45m². Grâce aux nombreuses baies vitrées, le séjour est très lumineux et donne directement sur le jardin et la terrasse couverte.
Elle dispose également d'un espace nuit composé de deux chambres et une salle de bains, et à l'écart, une grande suite parentale de plus de 25 m², composée d'un dressing et d'une salle d'eau indépendante.
Vous serez séduits par le grand et lumineux espace de vie, et la suite parentale indépendante.
Le prix affiché comprend le terrain, les frais de notaire, les frais de raccordement, et cette maison livrée prête à décorer.
N'attendez plus, contactez vite votre conseiller David LOPES au O6-5O-88-58-8O à l'agence MCA de Libourne, afin qu'il vous guide dans les démarches et vous accompagne dans ce projet de construction personnalisé.
Mentions légales
Idée de réalisation en modèle prêt à décorer sur l'un de nos terrains partenaires, sous réserve de disponibilités. Voir détails en agence.Agence Maisons de la Côte Atlantique de Libourne (33500)
- Téléphone :
- 05 57 48 72 88
- Adressse :
- 99, Avenue du Général de Gaulle
33500 Libourne, France
