Maison neuve à
Montertelot (56800) Référence : GC2424631_3

Prix du projet : Maison avec Terrain

prix 342 850 €

  • 4 pièces
  • 3 chambres
  • Surface maison 139 m2

Maison de 4 pièces (139 m²) à vendre à Montertelot
EMPLACEMENT PRIVILÉGIÉ - MAISON 4 PIÈCES NEUVE
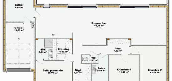
À vendre : à 40 km de l'océan Atlantique, votre agence Maisons de l'Avenir Vannes est heureuse de vous présenter, bénéficiant d'un emplacement d'exception dans Montertelot (56800), cette maison de 4 pièces de 139 m² et de 450 m² de terrain. Elle dispose de trois chambres, d'une cuisine et de deux salles de bains.
Cette maison compte 2 niveaux. Elle est neuve.
Cette maison se trouve dans un secteur recherché. On trouve un accès à la nationale N166 à 1 km. Il y a un tennis et une bibliothèque à quelques minutes de la maison.
Elle est proposée à l'achat pour 342 850 €.
Prenez contact pour plus d'informations sur la maison ou sur les démarches à suivre. Maisons de l'Avenir Vannes vous accompagne dans tous vos projets immobiliers et dans toutes vos démarches.

Mentions légales

Terrain proposé par un partenaire foncier selon disponibilités et autorisation de publicité au prix de 45 000 €. Hors droit d'enregistrement et frais de notaire. Terrain + Maison proposés au prix de 342 850 € (Hors branchements et raccordements, papiers peints, peintures, revêtement de sol dans les chambres. Tarif modifiable sans préavis). Etiquette énergie : A. Différents modèles disponibles pour ce terrain. Assurances et garanties du constructeur (RC professionnelle, décennale, dommage ouvrage, garantie de remboursement de l'acompte, livraison à prix et délai convenu) : https://www.maisonsdelavenir.com/mentions-legales/.

Contactez l'agence de Vannes

02 97 68 32 50

    * Champs obligatoires

    Vos informations sont traitées par HEXAOM et transmises à un conseiller commercial qui vous contactera afin de répondre à votre demande. Les plans et images présentés sur notre site sont la propriété d’HEXAOM et ne peuvent pas être reproduits sans son accord. Pour retrouver notre politique de protection des données personnelles et exercer vos droits conformément à la « loi informatique et liberté » cliquez-ici.