Maison neuve à
Montigny
(76380) Référence :
ND2378798_2
Prix du projet : Maison avec Terrain
prix 480 000 €
- 6 pièces
- 5 chambres
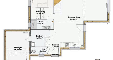
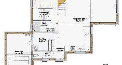
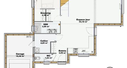
- Surface maison 114 m2
VENTE d'une maison de 6 pièces (114 m²) à Montigny
EMPLACEMENT PRIVILÉGIÉ - MAISON 6 PIÈCES NEUVE A CONSTRUIRE
En vente : à 7 km de Rouen, nous sommes heureux de vous proposer, bénéficiant d'un emplacement privilégié dans Montigny (76380), cette maison de 6 pièces de 114 m².
Cette maison compte 2 niveaux. Son intérieur offre cinq chambres, une cuisine et deux salles de bains. Cette maison est neuve.
Le terrain du bien est de 768 m².
Cette maison est située dans un quartier convoité. On y trouve une école élémentaire. Niveau transports, on trouve quatre gares à moins de 10 minutes en voiture. L'autoroute A150 et les nationales N338, N28 et N138 sont accessibles à moins de 10 km. Il y a un tennis, deux commerces et une épicerie dans les environs.
Son prix de vente est de 480 000 €.
N'hésitez pas à prendre contact avec notre agence (Noemie DEMEILLERS : 06-63-57-36-60) pour tout renseignement sur la maison et sur les modalités de vente. Maisons France Confort Sainte-Marie-des-Champs est là pour vous accompagner à toutes les étapes de votre projet.
Mentions légales
Terrain proposé par un partenaire foncier selon disponibilités et autorisation de publicité au prix de 149 000 €. Hors droit d'enregistrement et frais de notaire. Terrain + Maison proposés au prix de 480 000 € (Hors branchements et raccordements, papiers peints, peintures, revêtement de sol dans les chambres. Tarif modifiable sans préavis). Etiquette énergie : A. Différents modèles disponibles pour ce terrain. Assurances et garanties du constructeur (RC professionnelle, décennale, dommage ouvrage, garantie de remboursement de l'acompte, livraison à prix et délai convenu) : https://www.maisons-france-confort.fr/mentions-legales/. HEXAOM Services est enregistré auprès de l'ORIAS en tant que Courtier en financement, Niveau 1, sous le numéro 14001345.Agence Maisons France Confort de Sainte-Marie-des-Champs (76190)
- Téléphone :
- 02 32 98 94 90
- Adressse :
- 74 avenue René Coty
76190 Sainte-Marie-des-Champs, France
