Maison neuve à
Montigny-en-Ostrevent
(59182) Référence :
TH2444120_11
Prix du projet : Maison avec Terrain
prix 330 406 €
- 6 pièces
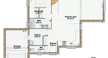
- 5 chambres
- Surface maison 114 m2
MAISON OSSATURE BOIS
Maison T6 (114 m²) à vendre à Montigny-en-Ostrevent
IDÉALEMENT SITUÉE - MAISON 6 PIÈCES NEUVE
Nous vous présentons cette maison de 6 pièces de 114 m² à vendre idéalement située dans Montigny-en-Ostrevent (59182).
Cette maison comporte 2 niveaux. Elle comporte cinq chambres, une cuisine et deux salles de bains. Cette maison est neuve.
Le terrain du bien est de 406 m².
Elle se situe dans un secteur convoité. L'École Maternelle Victor Hugo, l'École Élémentaire Malraux-Pasteur et le Lycée Professionnel René Cassin se trouvent à moins de 10 minutes à pied, tout comme une crèche. Niveau transports, il y a la gare Montigny-en-Ostrevent à quelques pas du bien. On trouve une bibliothèque, un tennis, trois commerces et un bureau de poste à quelques minutes.
Elle est proposée à l'achat pour 330 406 €.
Contactez notre agence (Thomas HAUSTRATE : 06-49-81-47-04) pour obtenir de plus amples renseignements sur cette maison, sur les modalités de vente et sur les démarches à suivre.
Mentions légales
Terrain proposé par un partenaire foncier selon disponibilités et autorisation de publicité au prix de 55 500 €. Hors droit d'enregistrement et frais de notaire. Terrain + Maison proposés au prix de 330 406 € (Hors branchements et raccordements, papiers peints, peintures, revêtement de sol dans les chambres. Tarif modifiable sans préavis). Etiquette énergie : A. Différents modèles disponibles pour ce terrain. Assurances et garanties du constructeur (RC professionnelle, décennale, dommage ouvrage, garantie de remboursement de l'acompte, livraison à prix et délai convenu) : https://www.maisons-france-confort.fr/mentions-legales/. HEXAOM Services est enregistré auprès de l'ORIAS en tant que Courtier en financement, Niveau 1, sous le numéro 14001345.Agence Maisons France Confort de Hénin-Beaumont (62110)
- Téléphone :
- 03 21 14 37 05
- Adressse :
- Chemin de Noyelles
62110 Hénin-Beaumont, France
