Maison neuve à
Montigny-Lencoup
(77520) Référence :
AD2404916_2
Prix du projet : Maison avec Terrain
prix 239 800 €
- 6 pièces
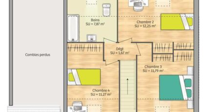
- 4 chambres
- Surface maison 89 m2
Montigny-Lencoup : maison F6 (89 m²) à vendre
CENTRE-VILLE - MAISON 6 PIÈCES NEUVE
En vente : située à 31 km de Melun, en centre-ville de Montigny-Lencoup (77520), nous sommes ravis de vous présenter cette maison de 6 pièces de 89 m². Elle dispose de quatre chambres, d'une cuisine et d'une salle de bains.
Le terrain de la maison est de 616 m².
Il s'agit d'une maison de 2 niveaux. Elle est neuve.
Il y a des écoles maternelles et élémentaires dans le quartier. On trouve un tennis, une bibliothèque, une boulangerie et une épicerie à quelques minutes du bien.
Son prix de vente est de 239 800 €.
Contactez Anne DELOHEN (06-30-93-26-67) pour tout renseignement sur la propriété. Maisons France Confort Nemours est là pour vous accompagner dans tous vos projets immobiliers.
Annonce proposée par un Agent Commercial Partenaire.
Mentions légales
Terrain proposé par un partenaire foncier selon disponibilités et autorisation de publicité au prix de 55 000 €. Hors droit d'enregistrement et frais de notaire. Terrain + Maison proposés au prix de 239 800 € (Hors branchements et raccordements, papiers peints, peintures, revêtement de sol dans les chambres. Tarif modifiable sans préavis). Etiquette énergie : A. Différents modèles disponibles pour ce terrain. Assurances et garanties du constructeur (RC professionnelle, décennale, dommage ouvrage, garantie de remboursement de l'acompte, livraison à prix et délai convenu) : https://www.maisons-france-confort.fr/mentions-legales/. HEXAOM Services est enregistré auprès de l'ORIAS en tant que Courtier en financement, Niveau 1, sous le numéro 14001345.Agence Maisons France Confort de Nemours (77140)
- Téléphone :
- 01 64 28 58 32
- Adressse :
- 16 Avenue Carnot
77140 Nemours, France
