Maison neuve à
Morangis
(91420) Référence :
SH2442983_1
Prix du projet : Maison avec Terrain
prix 342 986 €
- 5 pièces
- 3 chambres
- Surface maison 90 m2
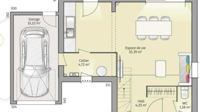
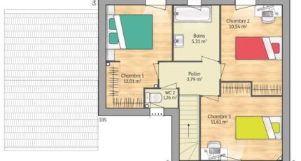
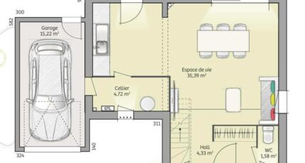
VENTE d'une maison de 5 pièces (90 m²) à Morangis
MAISON 5 PIÈCES NEUVE
À vendre : proche de la station Savigny-sur-Orge (Paris à 15 min avec le RER C), notre agence Maisons France Confort Nemours est heureuse de vous présenter à Morangis (91420), cette maison de 5 pièces de 90 m² et de 260 m² de terrain.
Il s'agit d'une maison de 2 niveaux. Elle compte trois chambres, une cuisine et une salle de bains. La maison est neuve.
Il y a plusieurs établissements scolaires (maternelle, élémentaire, primaire et collège) à moins de 10 minutes à pied. Côté transports en commun, on trouve les lignes de RER C, D et B ainsi que 31 gares à moins de 10 minutes en voiture. Il y a un tennis, des commerces, quatre boulangeries, trois supermarchés, un bureau de poste et quatre épiceries à quelques minutes du logement.
Elle est à vendre pour la somme de 342 986 €.
Contactez Stéphan HOURMANT (tél : 07-86-01-34-48) pour obtenir de plus amples informations sur la maison, sur les démarches à suivre ou sur les modalités de vente. Donnez vie à vos projets immobiliers avec Maisons France Confort Nemours.
Annonce proposée par un Agent Commercial Partenaire.
Mentions légales
Terrain proposé par un partenaire foncier selon disponibilités et autorisation de publicité au prix de 167 000 €. Hors droit d'enregistrement et frais de notaire. Terrain + Maison proposés au prix de 342 986 € (Hors branchements et raccordements, papiers peints, peintures, revêtement de sol dans les chambres. Tarif modifiable sans préavis). Etiquette énergie : A. Différents modèles disponibles pour ce terrain. Assurances et garanties du constructeur (RC professionnelle, décennale, dommage ouvrage, garantie de remboursement de l'acompte, livraison à prix et délai convenu) : https://www.maisons-france-confort.fr/mentions-legales/. HEXAOM Services est enregistré auprès de l'ORIAS en tant que Courtier en financement, Niveau 1, sous le numéro 14001345.Agence Maisons France Confort de Nemours (77140)
- Téléphone :
- 01 64 28 58 32
- Adressse :
- 16 Avenue Carnot
77140 Nemours, France
