Maison neuve à 
  Moréac
 (56500)  Référence :
 GC2281036_1 
Prix du projet : Maison avec Terrain
prix 231 900 €
- 4 pièces
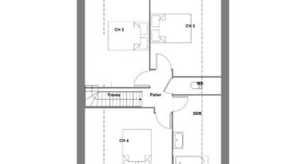
- 3 chambres
- Surface maison 89 m2
Moréac : maison T4 (89 m²) à vendre
PROCHE DE VANNES - MAISON 4 PIÈCES NEUVE
En vente : à 34 km de l'océan Atlantique et à 31 km de Vannes, notre agence Maisons de l'Avenir Vannes est ravie de vous proposer à Moréac (56500), cette maison de 4 pièces de 89 m² et de 510 m² de terrain. Son intérieur se divise en trois chambres, une cuisine et deux salles de bains.
Cette maison possède 2 niveaux. Elle est neuve.
L'École Primaire Publique le Grand Marronnier et l'École Primaire Privée Saint Cyr-Sainte Julitte sont implantées à moins de 10 minutes à pied, tout comme une structure d'accueil pour la petite enfance. La nationale N24 est accessible à 3 km. On trouve un tennis, deux boulangeries, deux commerces, un bureau de poste et une boucherie-charcuterie à quelques minutes.
Elle est à vendre pour la somme de 231 900 €.
Prenez contact avec notre constructeur (Germain CHARUEL : 02-97-68-32-50) pour toute information sur cette maison ou sur les démarches à suivre. Faites de vos projets immobiliers une réalité avec Maisons de l'Avenir Vannes.
Mentions légales
Maisons de l’Avenir, constructeur de maisons individuelles, propose en collaboration avec ses partenaires fonciers, une sélection de terrains constructibles, selon disponibilité, pour la construction de maisons neuves définies par le constructeur, avec un contrat de construction de maison individuelle, dans le cadre de la loi du 19/12/1990. Prix net, hors frais notariés, d'enregistrement et de publicité foncière
Terrain proposé au prix de : 45 000 €
Maison proposée au prix de : 186 900 €
Etiquette énergie : A. Assurances et garanties du constructeur (RC professionnelle, décennale, dommage ouvrage, Garantie de livraison à prix et délai convenu). https://www.maisonsdelavenir.com/mentions-legales/
Agence Maisons de l'Avenir de Vannes (56000)
- Téléphone :
- 02 97 68 32 50
- Adressse :
-  36, rue Oberlé
 56000 Vannes, France
 
  
  
  
  
  
  
  
  
  
 