Maison neuve à
Veneux-les-Sablons
(77250) Référence :
FA2404196_1
Prix du projet : Maison avec Terrain
prix 288 850 €
- 6 pièces
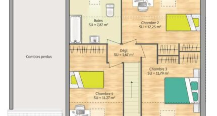
- 4 chambres
- Surface maison 89 m2
VENTE : maison de 6 pièces (89 m²) à Moret-Loing-et-Orvanne
MAISON 6 PIÈCES NEUVE - PROCHE DE MELUN
À vendre : à proximité du Transilien R (gare de Saint-Mammès, 50 min de Paris), nous vous proposons à Moret-Loing-et-Orvanne (77250), cette maison de 6 pièces de 89 m² et de 460 m² de terrain. Son intérieur inclut quatre chambres, une cuisine et une salle de bains.
Cette maison possède 2 niveaux. Elle est neuve.
On trouve l'École Maternelle les Lilas à moins de 10 minutes à pied. Niveau transports, il y a 10 gares à moins de 10 minutes en voiture. On trouve un tennis et une bibliothèque à proximité.
Son prix de vente est de 288 850 €.
Contactez Franck ALANOE (06-27-23-96-64) pour toute question sur la maison. Donnez vie à vos projets immobiliers avec Maisons France Confort Melun.
Annonce proposée par un Agent Commercial Partenaire.
Mentions légales
Terrain proposé par un partenaire foncier selon disponibilités et autorisation de publicité au prix de 110 900 €. Hors droit d'enregistrement et frais de notaire. Terrain + Maison proposés au prix de 288 850 € (Hors branchements et raccordements, papiers peints, peintures, revêtement de sol dans les chambres. Tarif modifiable sans préavis). Etiquette énergie : A. Différents modèles disponibles pour ce terrain. Assurances et garanties du constructeur (RC professionnelle, décennale, dommage ouvrage, garantie de remboursement de l'acompte, livraison à prix et délai convenu) : https://www.maisons-france-confort.fr/mentions-legales/. HEXAOM Services est enregistré auprès de l'ORIAS en tant que Courtier en financement, Niveau 1, sous le numéro 14001345.Agence Maisons France Confort de Melun (77000)
- Téléphone :
- 01 64 14 43 20
- Adressse :
- 3 route de Nangis
77000 Melun, France