Maison neuve à
Veneux-les-Sablons
(77250) Référence :
CY2426492_1
Prix du projet : Maison avec Terrain
prix 315 000 €
- 5 pièces
- 4 chambres
- Surface maison 105 m2
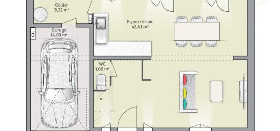
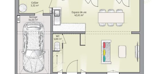
VENTE : maison de 5 pièces (105 m²) à Moret-Loing-et-Orvanne
PROCHE GARE - MAISON 5 PIÈCES NEUVE
Au pied du Transilien R (gare de Saint-Mammès, 50 min de Paris), laissez vous charmer par en vente, proche de la gare de Moret-Loing-et-Orvanne (77250), cette maison de 5 pièces de plain-pied de 105 m² et de 503 m² de terrain. Conçue de plain-pied, elle compte quatre chambres, une cuisine et deux salles de bains.
La maison est neuve.
Il y a l'École Maternelle les Lilas à moins de 10 minutes à pied. Niveau transports, on trouve 10 gares à moins de 10 minutes en voiture. On trouve un tennis et une bibliothèque à quelques minutes à peine.
Elle est à vendre pour la somme de 315 000 €.
Prenez contact avec Cedric YAHIAOUI (tél : 06-66-57-00-63) pour toute information sur la maison, sur les modalités de vente ou sur les démarches à suivre. Maisons France Confort Magny-le-Hongre est là pour vous accompagner dans tous vos projets immobiliers.
Annonce proposée par un Agent Commercial Partenaire.
Mentions légales
Terrain proposé par un partenaire foncier selon disponibilités et autorisation de publicité au prix de 123 900 €. Hors droit d'enregistrement et frais de notaire. Terrain + Maison proposés au prix de 315 000 € (Hors branchements et raccordements, papiers peints, peintures, revêtement de sol dans les chambres. Tarif modifiable sans préavis). Etiquette énergie : A. Différents modèles disponibles pour ce terrain. Assurances et garanties du constructeur (RC professionnelle, décennale, dommage ouvrage, garantie de remboursement de l'acompte, livraison à prix et délai convenu) : https://www.maisons-france-confort.fr/mentions-legales/. HEXAOM Services est enregistré auprès de l'ORIAS en tant que Courtier en financement, Niveau 1, sous le numéro 14001345.Agence Maisons France Confort de Magny-le-Hongre (77700)
- Téléphone :
- 01 84 80 92 96
- Adressse :
- 11 rue de Courtalin
77700 Magny-le-Hongre, France
