Maison neuve à
Veneux-les-Sablons (77250) Référence : CY2426557_5

Prix du projet : Maison avec Terrain

prix 300 000 €

  • 5 pièces
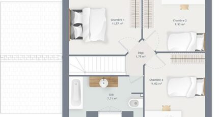
  • 3 chambres
  • Surface maison 80 m2

VENTE : maison T5 (80 m²) à Moret-Loing-et-Orvanne
PROCHE GARE - MAISON 5 PIÈCES NEUVE
À deux pas du Transilien R (gare de Saint-Mammès, 50 min de Paris), nous sommes ravis de vous proposer cette maison de 5 pièces de 80 m² à vendre dans Moret-Loing-et-Orvanne (77250), proche de la gare.
C'est une maison de 2 niveaux. Son intérieur comporte trois chambres, une cuisine et une salle de bains. Cette maison est neuve.
Le terrain de la propriété est de 630 m².
L'École Maternelle les Lilas est implantée à moins de 10 minutes à pied. Niveau transports en commun, on trouve 10 gares à moins de 10 minutes en voiture. Il y a un tennis et une bibliothèque à quelques minutes du bien.
Elle est à vendre pour la somme de 300 000 €.
Contactez Cedric YAHIAOUI (06-66-57-00-63) pour toute question sur la maison. Faites de vos projets immobiliers une réalité avec Maisons France Confort Magny-le-Hongre.

Annonce proposée par un Agent Commercial Partenaire.

Mentions légales

Terrain proposé par un partenaire foncier selon disponibilités et autorisation de publicité au prix de 110 900 €. Hors droit d'enregistrement et frais de notaire. Terrain + Maison proposés au prix de 300 000 € (Hors branchements et raccordements, papiers peints, peintures, revêtement de sol dans les chambres. Tarif modifiable sans préavis). Etiquette énergie : A. Différents modèles disponibles pour ce terrain. Assurances et garanties du constructeur (RC professionnelle, décennale, dommage ouvrage, garantie de remboursement de l'acompte, livraison à prix et délai convenu) : https://www.maisons-france-confort.fr/mentions-legales/. HEXAOM Services est enregistré auprès de l'ORIAS en tant que Courtier en financement, Niveau 1, sous le numéro 14001345.

Contactez l'agence de Magny-le-Hongre

01 84 80 92 96

    * Champs obligatoires

    Vos informations sont traitées par HEXAOM et transmises à un conseiller commercial qui vous contactera afin de répondre à votre demande. Les plans et images présentés sur notre site sont la propriété d’HEXAOM et ne peuvent pas être reproduits sans son accord. Pour retrouver notre politique de protection des données personnelles et exercer vos droits conformément à la « loi informatique et liberté » cliquez-ici.