Maison neuve à
Mormant
(77720) Référence :
DC2496389_1
Prix du projet : Maison avec Terrain
prix 310 516 €
- 5 pièces
- 3 chambres
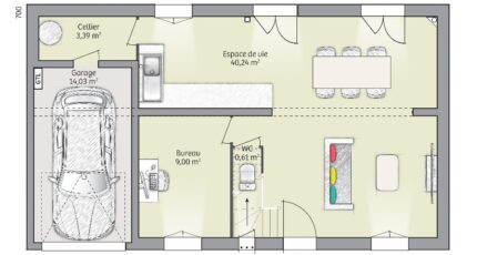
- Surface maison 90 m2
MAISON NEUVE AVEC 5 PIÈCES DANS LA VILLE DE MORMANT
PRÉSENTATION DU BIEN
Située à Mormant, cette maison neuve à construire offre une surface habitable de 90 m² sur un terrain de 500 m².
Cette maison comprend trois chambres, une cuisine et une salle de bains avec baignoire. Vous pourrez réaliser votre projet dans une construction répartie sur deux niveaux.
Le terrain de 500 m² vous permettra de concrétiser votre projet de construction dans un espace adapté.
ENVIRONNEMENT
La commune de Mormant est à proximité de Corbeil-Essonnes, située à 30 km. Vous trouverez plusieurs arrêts de bus desservis par les lignes P, 3132, 3248, 3129, 3124, 3136, 3138 et 3120, facilitant vos déplacements. La gare de Mormant est également accessible à pied en quelques minutes. Les autoroutes A5, A105 et A5A se situent entre 11 et 19 km de la maison.
Pour l'éducation, trois établissements scolaires sont proches : l'école maternelle Charles Perrault, l'école élémentaire Jean de la Fontaine et le collège Nicolas Fouquet, tous accessibles à pied en moins de 15 minutes.
Autour de la maison, vous trouverez des commerces de proximité, ainsi que des restaurants situés à environ 24 minutes à pied. Les activités sportives incluent un terrain de tennis situé à moins de 10 minutes à pied. Un marché hebdomadaire se tient à environ 385 mètres.
NOUS CONTACTER
Maison neuve à construire à vendre au prix de 310 516 euros.
Pour plus d'informations et concrétiser votre projet, contactez Maisons France Confort Melun, spécialiste de la construction de maison. M. David CORDIER est à votre disposition au 06-10-79-38-15.
N'hésitez pas à appeler pour réaliser votre maison sur mesure à Mormant.
Annonce proposée par un Agent Commercial Partenaire.
Mentions légales
Terrain proposé par un partenaire foncier selon disponibilités et autorisation de publicité au prix de 85 000 €. Hors droit d'enregistrement et frais de notaire. Terrain + Maison proposés au prix de 310 516 € (Hors branchements et raccordements, papiers peints, peintures, revêtement de sol dans les chambres. Tarif modifiable sans préavis). Etiquette énergie : A. Différents modèles disponibles pour ce terrain. Assurances et garanties du constructeur (RC professionnelle, décennale, dommage ouvrage, garantie de remboursement de l'acompte, livraison à prix et délai convenu) : https://www.maisons-france-confort.fr/mentions-legales/. HEXAOM Services est enregistré auprès de l'ORIAS en tant que Courtier en financement, Niveau 1, sous le numéro 14001345.Agence Maisons France Confort de Melun (77000)
- Téléphone :
- 01 64 14 43 20
- Adressse :
- 3 route de Nangis
77000 Melun, France