Maison neuve à
Mortery (77160) Référence : CY2436073_1

Prix du projet : Maison avec Terrain

prix 222 700 €

  • 5 pièces
  • 3 chambres
  • Surface maison 90 m2

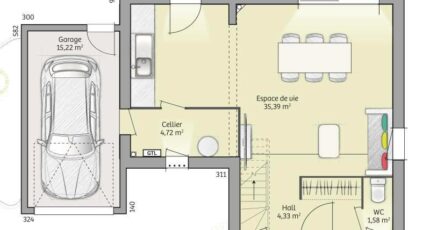
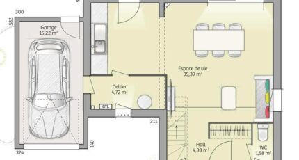
Mortery : maison de 5 pièces (90 m²) à vendre
MAISON 5 PIÈCES NEUVE
En vente : proche de la gare de Provins (Paris à 1 h avec le Transilien P), Maisons France Confort Magny-le-Hongre vous présente à Mortery (77160), cette maison de 5 pièces de 90 m² et de 1 100 m² de terrain. Elle inclut trois chambres, une cuisine et une salle de bains.
Cette maison compte 2 niveaux. Elle est neuve.
Des établissements scolaires (de la maternelle au lycée) sont implantés à moins de 10 minutes en voiture, tout comme deux crèches à moins de 10 minutes à pied. Niveau transports en commun, il y a quatre gares à moins de 10 minutes en voiture. On trouve des tennis, des bibliothèques, un bassin de natation, un bowling, des commerces, des boulangeries, deux supermarchés, des boucheries-charcuteries et deux supérettes à quelques minutes. Ne manquez pas le marché Centre-Ville tous les samedis matin.
Elle est proposée à l'achat pour 222 700 €.
Contactez notre agence (YAHIAOUI Cedric : 06-66-57-00-63) pour obtenir de plus amples informations sur la maison. Concrétisez vos projets immobiliers avec Maisons France Confort Magny-le-Hongre.

Annonce proposée par un Agent Commercial Partenaire.

Mentions légales

Terrain proposé par un partenaire foncier selon disponibilités et autorisation de publicité au prix de 62 700 €. Hors droit d'enregistrement et frais de notaire. Terrain + Maison proposés au prix de 222 700 € (Hors branchements et raccordements, papiers peints, peintures, revêtement de sol dans les chambres. Tarif modifiable sans préavis). Etiquette énergie : A. Différents modèles disponibles pour ce terrain. Assurances et garanties du constructeur (RC professionnelle, décennale, dommage ouvrage, garantie de remboursement de l'acompte, livraison à prix et délai convenu) : https://www.maisons-france-confort.fr/mentions-legales/. HEXAOM Services est enregistré auprès de l'ORIAS en tant que Courtier en financement, Niveau 1, sous le numéro 14001345.

Contactez l'agence de Magny-le-Hongre

01 84 80 92 96

    * Champs obligatoires

    Vos informations sont traitées par HEXAOM et transmises à un conseiller commercial qui vous contactera afin de répondre à votre demande. Les plans et images présentés sur notre site sont la propriété d’HEXAOM et ne peuvent pas être reproduits sans son accord. Pour retrouver notre politique de protection des données personnelles et exercer vos droits conformément à la « loi informatique et liberté » cliquez-ici.