Maison neuve à 
  Mosles
 (14400)  Référence :
 JS2322556_10 
Prix du projet : Maison avec Terrain
prix 201 000 €
- 5 pièces
- 3 chambres
- Surface maison 85 m2
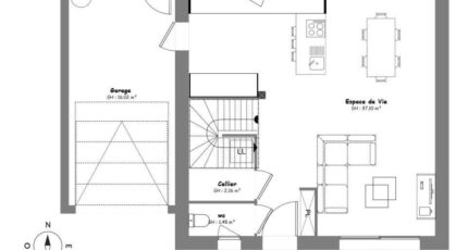
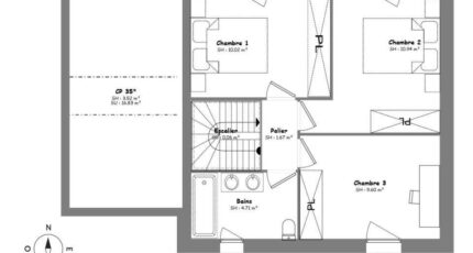
Maison de 5 pièces (85 m²) en vente à Bayeux
MAISON 5 PIÈCES NEUVE - PROCHE DE CAEN
À vendre : localisée à 9 km de la Manche et à quelques kilomètres de Caen, à Bayeux (14400), Maisons France Confort Bayeux vous propose cette maison de 5 pièces de 85 m². Son intérieur compte trois chambres, une cuisine et une salle de bains.
Le terrain de cette maison est de 301 m².
Cette maison comporte 2 niveaux. Elle est neuve.
Il y a des écoles de tous niveaux (de la maternelle au lycée) à moins de 10 minutes à pied, tout comme une crèche. Niveau transports en commun, on trouve la gare Bayeux à proximité. La nationale N13 est accessible à 3 km. Il y a une bibliothèque, des commerces, des boulangeries, un supermarché, trois épiceries et une supérette à quelques minutes à peine. Enfin, 2 marchés animent les environs.
Elle est à vendre pour la somme de 201 000 €.
Contactez notre agence (HUE Emilie : 06-29-81-46-66) pour plus de renseignements sur la maison.
Annonce proposée par un Agent Commercial Partenaire.
Mentions légales
Terrain proposé par un partenaire foncier selon disponibilités et autorisation de publicité au prix de 56 000 €. Hors droit d'enregistrement et frais de notaire. Maison proposée, avec un contrat de construction de maison individuelle, dans le cadre de la loi du 19/12/1990, au prix de 145 000 € (Hors branchements et raccordements, papiers peints, peintures, revêtement de sol dans les chambres, qui sont chiffrés dans les travaux qui restent à charge du client. Tarif modifiable sans préavis). Étiquette énergie : A. Différents modèles disponibles pour ce terrain. Assurances et garanties du constructeur comprises (RC professionnelle, décennale, dommage ouvrage).Agence Maisons France Confort de Bayeux (14400)
- Téléphone :
- 02 31 51 20 91
- Adressse :
-  2, rue Saint Loup
 14400 Bayeux, France
 
  
  
  
  
  
 