Maison neuve à
Mourmelon-le-Grand
(51400) Référence :
NG2414784_19
Prix du projet : Maison avec Terrain
prix 220 000 €
- 5 pièces
- 3 chambres
- Surface maison 90 m2
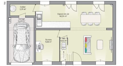
À Mourmelon le Grand, maison neuve de 90m² avec 3 chambres. Le modèle de maison qui vous est présenté est Open Nord SHAM GI accès Nord 90 so tradition , il est équipé d'une pièce de vie de 40m² ouverte sur l'espace cuisine, une salle de bain, 3 chambres, un bureau (au rez-de-chaussée), un cellier et un garage . Il est possible de personnaliser ces plans afin qu'ils répondent parfaitement à vos attentes.
La construction traditionnelle aux normes RE2020 de la maison est réalisée en brique et l'ensemble des matériaux utilisés sont de qualité afin de vous assurer un investissement durable.
Terrain constructible de 400m2 entièrement viabilisé à Mourmelon le Grand parfaitement plat et idéalement situé au calme et proche de toutes les commodités.
Mourmelon est une commune recherchée pour son axe direct, ses commodités (écoles jusqu'au collège, commerces, nombreuses associations sportives et culturelles pour la famille et gare à proximité) la commune est proche de Châlons en Champagne, Suippes, Mourmelon le Petit, Livry-Louvercy et Reims.
Pour plus de renseignements vous pouvez me contacter , Nicolas GUILLAUME de l'agence Maisons France Confort de Cormontreuil au 07.77.79.23.59
Mentions légales
Terrain proposé par un partenaire foncier selon disponibilités et autorisation de publicité au prix de 44 000 €. Hors droit d'enregistrement et frais de notaire. Terrain + Maison proposés au prix de 220 000 € (Hors branchements et raccordements, papiers peints, peintures, revêtement de sol dans les chambres. Tarif modifiable sans préavis). Etiquette énergie : A. Différents modèles disponibles pour ce terrain. Assurances et garanties du constructeur (RC professionnelle, décennale, dommage ouvrage, garantie de remboursement de l'acompte, livraison à prix et délai convenu) : https://www.maisons-france-confort.fr/mentions-legales/. HEXAOM Services est enregistré auprès de l'ORIAS en tant que Courtier en financement, Niveau 1, sous le numéro 14001345.Agence Maisons France Confort de Cormontreuil (51350)
- Téléphone :
- 03 26 46 40 50
- Adressse :
- 8 rue des rémouleurs
51350 Cormontreuil, France
