Maison neuve à
Mouroux
(77120) Référence :
TM2290496_1
Prix du projet : Maison avec Terrain
prix 250 000 €
- 5 pièces
- 3 chambres
- Surface maison 90 m2
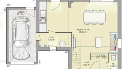
VENTE d'une maison F5 (90 m²) à Mouroux
MAISON 5 PIÈCES NEUVE - PROCHE DE MEAUX
Proche du Transilien P (55 min de Paris), découvrez cette maison de 5 pièces de 90 m² à Mouroux (77120). Elle est composée de trois chambres, d'une cuisine et d'une salle de bains.
Le terrain de la propriété est de 400 m².
Cette maison comporte 2 niveaux. Elle est neuve.
Il y a cinq établissements scolaires à moins de 10 minutes à pied. Côté transports, on trouve quatre gares à moins de 10 minutes en voiture. On trouve un tennis, trois commerces, deux boulangeries, une épicerie et un bureau de poste dans les environs.
Elle est à vendre pour la somme de 250 000 €.
N'hésitez pas à prendre contact avec Teddy MELES (06-17-56-83-36) pour tout renseignement sur la maison, sur les modalités de vente ou sur les démarches à suivre.
Annonce proposée par un Agent Commercial Partenaire.
Mentions légales
Terrain proposé par un partenaire foncier selon disponibilités et autorisation de publicité au prix de 80 000 €. Hors droit d'enregistrement et frais de notaire. Maison proposée, avec un contrat de construction de maison individuelle, dans le cadre de la loi du 19/12/1990, au prix de 170 000 € (Hors branchements et raccordements, papiers peints, peintures, revêtement de sol dans les chambres, qui sont chiffrés dans les travaux qui restent à charge du client. Tarif modifiable sans préavis). Étiquette énergie : A. Différents modèles disponibles pour ce terrain. Assurances et garanties du constructeur comprises (RC professionnelle, décennale, dommage ouvrage).Agence Maisons France Confort de Magny-le-Hongre (77700)
- Téléphone :
- 01 84 80 92 96
- Adressse :
- 11 rue de Courtalin
77700 Magny-le-Hongre, France
