Maison neuve à
Moussy-le-Neuf
(77230) Référence :
TM2239450_1
Prix du projet : Maison avec Terrain
prix 360 000 €
- 5 pièces
- 3 chambres
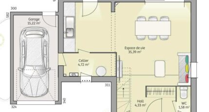
- Surface maison 90 m2
Maison de 5 pièces (90 m²) en vente à Moussy-le-Neuf
MAISON 5 PIÈCES NEUVE - PROCHE DE PARIS
À vendre : à côté du RER D (station Survilliers-Fosses, 30 min de Paris), à Moussy-le-Neuf (77230), nous sommes ravis de vous présenter cette maison de 5 pièces de 90 m².
C'est une maison de 2 niveaux. Elle propose trois chambres, une cuisine et une salle de bains. Cette maison est neuve.
Le terrain de la propriété s'étend sur 260 m².
Le Collège Jeanne Bonnardel Beguin, l'École Élémentaire le Chêne et l'École Maternelle le Chêne sont implantés à moins de 10 minutes à pied. Niveau transports, il y a deux lignes de RER (B et D) ainsi que 10 gares à moins de 10 minutes en voiture. On trouve un tennis, un bowling, une boulangerie, un supermarché, trois commerces, un bureau de poste et une épicerie à proximité du logement. Enfin, le marché Place Charles de Gaulle a lieu tous les samedis.
Elle est proposée à l'achat pour 360 000 €.
Contactez Teddy MELES (tél : 06-17-56-83-36) pour plus de renseignements sur la maison ou sur les démarches à suivre. Maisons France Confort Magny-le-Hongre est là pour vous accompagner à toutes les étapes de votre projet.
Annonce proposée par un Agent Commercial Partenaire.
Mentions légales
Terrain proposé par un partenaire foncier selon disponibilités et autorisation de publicité au prix de 160 000 €. Hors droit d'enregistrement et frais de notaire. Maison proposée, avec un contrat de construction de maison individuelle, dans le cadre de la loi du 19/12/1990, au prix de 200 000 € (Hors branchements et raccordements, papiers peints, peintures, revêtement de sol dans les chambres, qui sont chiffrés dans les travaux qui restent à charge du client. Tarif modifiable sans préavis). Étiquette énergie : A. Différents modèles disponibles pour ce terrain. Assurances et garanties du constructeur comprises (RC professionnelle, décennale, dommage ouvrage).Agence Maisons France Confort de Magny-le-Hongre (77700)
- Téléphone :
- 01 84 80 92 96
- Adressse :
- 11 rue de Courtalin
77700 Magny-le-Hongre, France
