Maison neuve à
Moussy-le-Neuf (77230) Référence : DC2391911_2

Prix du projet : Maison avec Terrain

prix 328 400 €

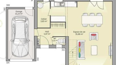
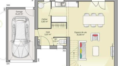
  • 5 pièces
  • 3 chambres
  • Surface maison 90 m2

Secteur Moussy-le-Neuf.

🌟 Votre maison idéale, imaginée pour vous par Maisons France Confort ! 🌟

Vous rêvez d'une maison sur mesure, alliant confort moderne, élégance intemporelle et qualité de vie ? Avec Maisons d'en France, transformez ce rêve en réalité !

✨ Pourquoi choisir Maisons France Confort?

Un savoir-faire reconnu : Plus de 100 ans d'expertise dans la construction de maisons individuelles, pour un résultat durable, esthétique et personnalisé.
Des maisons 100% adaptées à vos besoins : Plans modulables, matériaux haut de gamme et finitions soignées pour une maison uniquement vôtre.
Des performances énergétiques optimisées : Des maisons RT 2020 pour allier économies et respect de l'environnement.
📞 Contactez-nous dès maintenant pour concrétiser votre projet et bénéficier d'un premier rendez-vous personnalisé.

Annonce proposée par un Agent Commercial Partenaire.

Mentions légales

Terrain proposé par un partenaire foncier selon disponibilités et autorisation de publicité au prix de 124 000 €. Hors droit d'enregistrement et frais de notaire. Terrain + Maison proposés au prix de 328 400 € (Hors branchements et raccordements, papiers peints, peintures, revêtement de sol dans les chambres. Tarif modifiable sans préavis). Etiquette énergie : A. Différents modèles disponibles pour ce terrain. Assurances et garanties du constructeur (RC professionnelle, décennale, dommage ouvrage, garantie de remboursement de l'acompte, livraison à prix et délai convenu) : https://www.maisons-france-confort.fr/mentions-legales/. HEXAOM Services est enregistré auprès de l'ORIAS en tant que Courtier en financement, Niveau 1, sous le numéro 14001345.

Contactez l'agence de Melun

01 64 14 43 20

    * Champs obligatoires

    Vos informations sont traitées par HEXAOM et transmises à un conseiller commercial qui vous contactera afin de répondre à votre demande. Les plans et images présentés sur notre site sont la propriété d’HEXAOM et ne peuvent pas être reproduits sans son accord. Pour retrouver notre politique de protection des données personnelles et exercer vos droits conformément à la « loi informatique et liberté » cliquez-ici.