Maison neuve à
Mus
(30121) Référence :
LR2430264_1
Prix du projet : Maison avec Terrain
prix 304 000 €
- 4 pièces
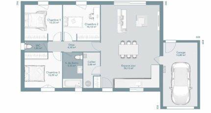
- 3 chambres
- Surface maison 83 m2
Mus : maison F4 (83 m²) en vente.
IDÉALEMENT SITUÉE - MAISON 4 PIÈCES NEUVE.
À 8 minutes de Vergèze, 10 minutes de Calvisson, 20 minutes de Nîmes, nous sommes ravis de vous proposer en vente, idéalement située dans Mus (30121), cette maison de 4 pièces de plain-pied de 83 m². Conçue de plain-pied, elle offre trois chambres, une cuisine et une salle de bains.
Le terrain de la propriété s'étend sur 368 m².
Cette maison est neuve.
Cette maison se situe dans un secteur convoité. L'École Primaire les Amandiers est implantée à moins de 10 minutes à pied. Niveau transports en commun, on trouve huit gares à moins de 10 minutes en voiture. L'autoroute A9 est accessible à 1 km. Il y a deux commerces, une boulangerie, un bureau de poste et une épicerie à quelques minutes.
Elle est proposée à l'achat pour 304 000 €.
Prenez contact avec notre agence (Lionel ROMERA : 06-30-39-77-79) pour toute question sur la maison ou sur les démarches à suivre.
Annonce proposée par un Agent Commercial Partenaire.
Mentions légales
Terrain proposé par un partenaire foncier selon disponibilités et autorisation de publicité au prix de 150 000 €. Hors droit d'enregistrement et frais de notaire. Terrain + Maison proposés au prix de 304 000 € (Hors branchements et raccordements, papiers peints, peintures, revêtement de sol dans les chambres. Tarif modifiable sans préavis). Etiquette énergie : A. Différents modèles disponibles pour ce terrain. Assurances et garanties du constructeur (RC professionnelle, décennale, dommage ouvrage, garantie de remboursement de l'acompte, livraison à prix et délai convenu) : https://www.maisons-france-confort.fr/mentions-legales/. HEXAOM Services est enregistré auprès de l'ORIAS en tant que Courtier en financement, Niveau 1, sous le numéro 14001345.Agence Maisons France Confort de Montpellier (34000)
- Téléphone :
- 04 67 64 85 11
- Adressse :
- 48, impasse Louis Ferdinand Herold
34000 Montpellier, France
