Maison neuve à
Mus (30121) Référence : LR2458662_1

Prix du projet : Maison avec Terrain

prix 378 900 €

  • 5 pièces
  • 3 chambres
  • Surface maison 92 m2

Mus : maison de 5 pièces (92 m²) en vente

PROCHE DE NIMES - MAISON 5 PIÈCES NEUVE

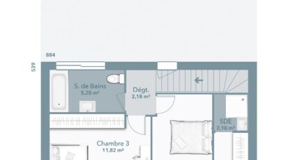
À vendre : localisée à 15 minutes de Lunel, 25 minutes de Nîmes, , nous vous présentons cette maison de 5 pièces de 92 m² sur 378 m² de terrain à Mus (30121). Son intérieur est composé de trois chambres, d'une cuisine et de trois salles de bains.
Cette maison possède 2 niveaux. Elle est neuve.
L'École Primaire les Amandiers est implantée à moins de 10 minutes à pied. Côté transports, il y a huit gares à moins de 10 minutes en voiture. Il y a un accès à l'autoroute A9 à 1 km. On trouve deux commerces et une épicerie à quelques minutes du bien.
Elle est proposée à l'achat pour 378 900 €.
N'hésitez pas à prendre contact avec Lionel ROMERA (tél : 06-30-39-77-79) pour toute information sur la maison ou sur les modalités de vente.

Annonce proposée par un Agent Commercial Partenaire.

Mentions légales

Terrain proposé par un partenaire foncier selon disponibilités et autorisation de publicité au prix de 158 900 €. Hors droit d'enregistrement et frais de notaire. Terrain + Maison proposés au prix de 378 900 € (Hors branchements et raccordements, papiers peints, peintures, revêtement de sol dans les chambres. Tarif modifiable sans préavis). Etiquette énergie : A. Différents modèles disponibles pour ce terrain. Assurances et garanties du constructeur (RC professionnelle, décennale, dommage ouvrage, garantie de remboursement de l'acompte, livraison à prix et délai convenu) : https://www.maisons-france-confort.fr/mentions-legales/. HEXAOM Services est enregistré auprès de l'ORIAS en tant que Courtier en financement, Niveau 1, sous le numéro 14001345.

Contactez l'agence de Montpellier

04 67 64 85 11

    * Champs obligatoires

    Vos informations sont traitées par HEXAOM et transmises à un conseiller commercial qui vous contactera afin de répondre à votre demande. Les plans et images présentés sur notre site sont la propriété d’HEXAOM et ne peuvent pas être reproduits sans son accord. Pour retrouver notre politique de protection des données personnelles et exercer vos droits conformément à la « loi informatique et liberté » cliquez-ici.