Maison neuve à
Nérac
(47600) Référence :
HC2470041_3
Prix du projet : Maison avec Terrain
prix 238 000 €
- 3 pièces
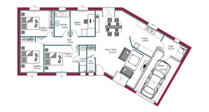
- 2 chambres
- Surface maison 107 m2
VENTE : charmante maison en V, 5 pièces 107m²
Maison T5 proche de Nérac.
Idéalement située. A proximité des commerces, écoles, médecins, lignes de bus.
▪️ Modèle Garonne :
- 3 chambres avec placards dont suite parentale
- 1 bureau
- Grand salon/séjour lumineux
- Cuisine ouverte avec cellier communiquant au garage
- Entrée avec rangements
- DPE : A (norme RE2020)
- Modèle entièrement personnalisable !
- CCMI et garantie de livraison
Chiffrage projet réalisé sur la base d'une maison prêt à décorer, hors frais de notaire.
Pour toute information sur la maison, sur les modalités de vente ou sur les démarches à suivre, contactez Hugo Chambon au numéro indiqué sur la photo.
Mentions légales
Idée de réalisation en modèle prêt à décorer sur l'un de nos terrains partenaires, sous réserve de disponibilités. Voir détails en agence.Agence Maisons de la Côte Atlantique de Boé (47550)
- Téléphone :
- 05 64 25 07 47
- Adressse :
- 111 Avenue de bigorre
47550 Boé, France
