Maison neuve à
Nivelle
(59230) Référence :
TS2448026_1
Prix du projet : Maison avec Terrain
prix 385 076 €
- 6 pièces
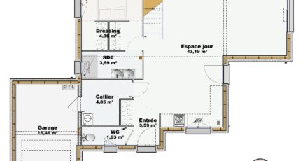
- 4 chambres
- Surface maison 120 m2
Maison T6 (120 m²) à vendre à Nivelle
EMPLACEMENT PRIVILÉGIÉ - MAISON 6 PIÈCES NEUVE
À vendre sur la frontière belge et à deux pas de Villeneuve-d'Ascq, Maisons France Confort Lille vous propose cette maison de 6 pièces de 120 m² bénéficiant d'un emplacement d'exception dans Nivelle (59230).
Il s'agit d'une maison de 2 niveaux. Son intérieur comporte quatre chambres, une cuisine et deux salles de bains. Cette maison est neuve.
Le terrain de la propriété s'étend sur 800 m².
Elle se situe dans un secteur attractif. L'École Primaire Au Bord de l'Eau et l'École Maternelle Au Bord de l'Eau se trouvent à moins de 10 minutes à pied. Côté transports en commun, il y a quatre gares à moins de 10 minutes en voiture. L'autoroute A23 est accessible à 7 km. On trouve une boucherie-charcuterie dans les environs.
Elle est proposée à l'achat pour 385 076 €.
N'hésitez pas à prendre contact avec Teddy SAVARY (tél : 06-23-32-42-75) pour plus d'informations sur la maison, sur les démarches à suivre ou sur les modalités de vente.
Mentions légales
Terrain proposé par un partenaire foncier selon disponibilités et autorisation de publicité au prix de 106 000 €. Hors droit d'enregistrement et frais de notaire. Terrain + Maison proposés au prix de 385 076 € (Hors branchements et raccordements, papiers peints, peintures, revêtement de sol dans les chambres. Tarif modifiable sans préavis). Etiquette énergie : A. Différents modèles disponibles pour ce terrain. Assurances et garanties du constructeur (RC professionnelle, décennale, dommage ouvrage, garantie de remboursement de l'acompte, livraison à prix et délai convenu) : https://www.maisons-france-confort.fr/mentions-legales/. HEXAOM Services est enregistré auprès de l'ORIAS en tant que Courtier en financement, Niveau 1, sous le numéro 14001345.Agence Maisons France Confort de Lille (59000)
- Téléphone :
- 03 20 48 50 23
- Adressse :
- 179 Boulevard de la liberté
59000 Lille, France
