Maison neuve à
Nonant
(14400) Référence :
EH2299502_8
Prix du projet : Maison avec Terrain
prix 220 900 €
- 6 pièces
- 4 chambres
- Surface maison 110 m2
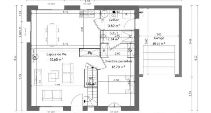
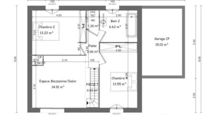
Maison F6 (110 m²) en vente à Nonant
EMPLACEMENT PRIVILÉGIÉ - MAISON 6 PIÈCES NEUVE
En vente à 12 km de la Manche et à 21 km de Caen, ayez le coup de coeur pour cette maison de 6 pièces de 110 m² et de 475 m² de terrain bénéficiant d'un emplacement privilégié dans Nonant (14400).
Cette maison comporte 2 niveaux. Elle propose quatre chambres, une cuisine et deux salles de bains. La maison est neuve.
Cette maison se trouve dans un secteur attractif. L'École Primaire les Prés Verts est implantée à moins de 10 minutes à pied. Niveau transports en commun, il y a les gares Audrieu et Bayeux à moins de 10 minutes en voiture. Il y a un accès à la nationale N13 à 2 km.
Son prix de vente est de 220 900 €.
Contactez Emilie HUE (tél : 06-29-81-46-66) pour toute question sur la maison ou sur les modalités de vente.
Annonce proposée par un Agent Commercial Partenaire.
Mentions légales
Terrain proposé par un partenaire foncier selon disponibilités et autorisation de publicité au prix de 55 900 €. Hors droit d'enregistrement et frais de notaire. Maison proposée, avec un contrat de construction de maison individuelle, dans le cadre de la loi du 19/12/1990, au prix de 165 000 € (Hors branchements et raccordements, papiers peints, peintures, revêtement de sol dans les chambres, qui sont chiffrés dans les travaux qui restent à charge du client. Tarif modifiable sans préavis). Étiquette énergie : A. Différents modèles disponibles pour ce terrain. Assurances et garanties du constructeur comprises (RC professionnelle, décennale, dommage ouvrage).Agence Maisons France Confort de Bayeux (14400)
- Téléphone :
- 02 31 51 20 91
- Adressse :
- 2, rue Saint Loup
14400 Bayeux, France
