Maison neuve à
Nonant
(14400) Référence :
EH2299502_10
Prix du projet : Maison avec Terrain
prix 200 900 €
- 5 pièces
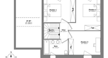
- 3 chambres
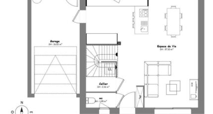
- Surface maison 85 m2
Maison de 5 pièces (85 m²) à vendre à Nonant
EMPLACEMENT PRIVILÉGIÉ - MAISON 5 PIÈCES NEUVE
À vendre : localisée à 12 km de la Manche et à deux pas de Caen, nous sommes heureux de vous proposer cette maison de 5 pièces de 85 m² bénéficiant d'un emplacement d'exception dans Nonant (14400). Elle comporte trois chambres, une cuisine et une salle de bains.
Le terrain de la propriété est de 475 m².
Cette maison possède 2 niveaux. Elle est neuve.
La maison est située dans un quartier convoité. On trouve l'École Primaire les Prés Verts à moins de 10 minutes à pied. Côté transports en commun, il y a les gares Audrieu et Bayeux à moins de 10 minutes en voiture. On trouve un accès à la nationale N13 à 2 km.
Elle est proposée à l'achat pour 200 900 €.
Prenez contact avec notre agence (Emilie HUE : 06-29-81-46-66) pour tout renseignement sur la maison ou sur les modalités de vente.
Annonce proposée par un Agent Commercial Partenaire.
Mentions légales
Terrain proposé par un partenaire foncier selon disponibilités et autorisation de publicité au prix de 55 900 €. Hors droit d'enregistrement et frais de notaire. Maison proposée, avec un contrat de construction de maison individuelle, dans le cadre de la loi du 19/12/1990, au prix de 145 000 € (Hors branchements et raccordements, papiers peints, peintures, revêtement de sol dans les chambres, qui sont chiffrés dans les travaux qui restent à charge du client. Tarif modifiable sans préavis). Étiquette énergie : A. Différents modèles disponibles pour ce terrain. Assurances et garanties du constructeur comprises (RC professionnelle, décennale, dommage ouvrage).Agence Maisons France Confort de Bayeux (14400)
- Téléphone :
- 02 31 51 20 91
- Adressse :
- 2, rue Saint Loup
14400 Bayeux, France
